<Дом, которого вы заслуживаете - рядом с Софией!
Amur Gardens - это не просто место для жизни - это стиль жизни, сочетающий в себе комфорт, качество и удобство. Это ваш дом - рядом с природой и динамикой столицы. Инвестируйте в свое будущее сегодня!
Уникальный комплекс с множеством удобств в городе. Комплекс имеет множество уникальных и неповторимых удобств. Такие дома созданы для того, чтобы наполнить их смехом, музыкой, танцами и счастливыми моментами. Качество, комфорт, спокойствие, зеленые зоны и все это на красивой природе недалеко от столицы.
Благодаря своему исключительному расположению, комплекс предлагает множество возможностей для развлечений и отдыха, а его коммуникативное расположение делает его отличным выбором для постоянного проживания. Окруженный зелеными холмами район обеспечивает всегда желанное спокойствие, прохладу и ощущение гармонии в сочетании с удобствами современной жизни.
Удобство на кончиках пальцев, все, что вам нужно, рядом - от магазинов, школ и транспорта до зеленых насаждений и красивой сельской местности!
Комплекс включает в себя:
- Дома с 1, 2 и 3 спальнями, а также студии - идеальное решение для семей, молодых специалистов и инвесторов.
- Четыре здания с современным дизайном, высококачественными материалами и зелеными зонами.
- Более 250 подземных и 21 наземного парковочных мест, а также станция зарядки электромобилей.
-Магазины, кафе, детский центр и тренажерный зал на открытом воздухе - все, что нужно жителям для их удобства.
- Детская игровая площадка для игр и развлечений.
- Зона барбекю для незабываемых моментов с семьей и друзьями.
- Красивые зеленые зоны общего пользования для отдыха и релаксации.
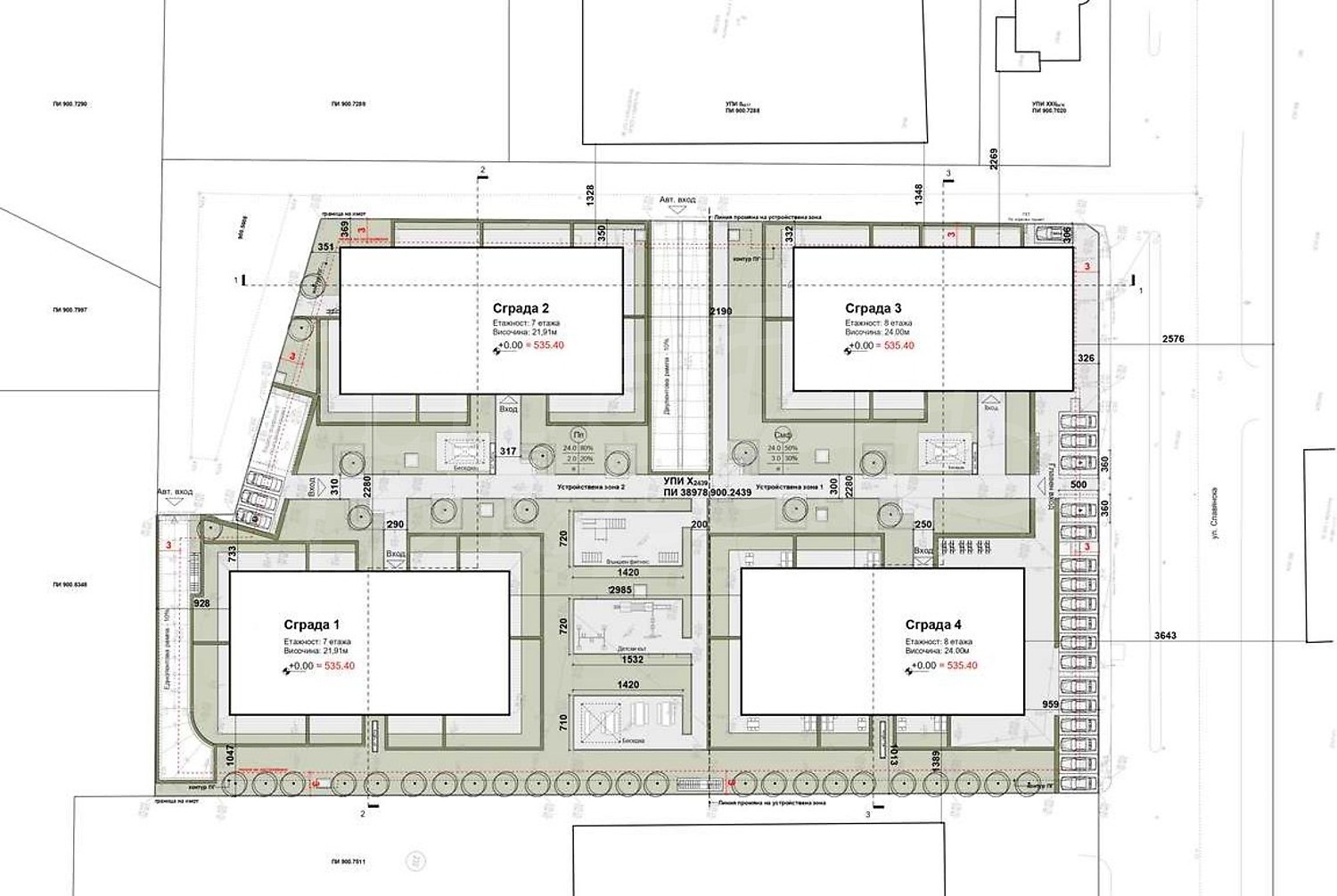
Здание 1
- Застроенная площадь - 675,13 кв. м.
- Площадь этажа - 4 665,51 кв. м.
- Светлые высоты этажей — создают ощущение простора и комфорта: 3,22 м на 1-м этаже и 2,72 м на этажах со 2-го по 7-й.
- Квартиры - 60 шт.
- Гаражи - 15 шт.
Решен на 7 этажах, с одним входом, подземным паркингом, на первом уровне расположены лобби, служебные помещения, 8 квартир с собственными двориками. На остальных 6 этажах расположены еще 52 квартиры. Общее количество квартир 60. Вертикальные коммуникации обеспечиваются двойной лестницей и двумя лифтами.
Здание 2
- Застроенная площадь - 697,6 кв. м.
- Площадь этажа - 4 817,15 кв. м.
- Светлые высоты этажей — создают ощущение простора и комфорта: 3,22 м на 1-м этаже и 2,72 м на этажах со 2-го по 7-й.
- Квартиры - 60 шт.
- Гаражи - 8 шт.
Решен на 7 этажах, с одним входом, подземным паркингом, на первом уровне расположены лобби, сервисные помещения, детский центр, 6 шт. квартир с собственными двориками. На остальных 6 этажах расположены еще 48 шт. квартир и 6 шт. студий. Общее количество квартир 60. Вертикальные коммуникации обеспечиваются двойной лестницей и двумя лифтами.
Здание 3
- Застроенная площадь - 675,13 кв. м.
- Площадь этажа - 5 379,69 кв. м.
- Светлые высоты этажей — создают ощущение простора и комфорта: 3,20 м на 1-м этаже и 2,60 м на этажах со 2-го по 8-й.
- Квартиры - 69 шт.
- Гаражи - 11 шт.
Расположен на 8 этажах, имеет один вход, подземный паркинг, на первом уровне находятся вестибюль, служебные помещения, 6 шт. квартир с собственными дворами, 2 шт. магазинов с отдельными входами. На остальных 7 этажах расположены еще 63 квартиры. Общее количество квартир 69. Вертикальные коммуникации обеспечиваются двойной лестницей и двумя лифтами.
Здание 4
- Застроенная площадь - 697,61 кв. м.
- Площадь этажа - 5 559,38 кв. м.
- Светлые высоты этажей — создают ощущение простора и комфорта: 3,20 м на 1-м этаже и 2,60 м на этажах со 2-го по 8-й.
- Квартиры - 67 шт.
- Квартира для малообеспеченных - 1 шт.
- Гаражи - 20 шт.
Расположен на 8 этажах, имеет один вход, подземный паркинг, на первом уровне находятся лобби, служебные помещения, 5 шт. квартир с собственными дворами, 1 из которых - доступная квартира, 2 шт. магазинов с отдельными входами, кафе. На остальных 7 этажах расположены еще 56 квартир и 6 студий. Общее количество квартир 67 шт. Вертикальные коммуникации обеспечиваются двойной лестницей и двумя лифтами.
Планировка зданий ортогональна и ориентирована в наиболее благоприятных географических направлениях. Для доступа к каждому зданию спроектирована внутренняя сеть пешеходных связей. На уровне первого этажа расположены торговые площади, кафе и детский центр, каждый объект имеет собственный вход. Предусмотрена парковка: подземный уровень и наземные парковочные места. Автомобильный доступ к подземной парковке осуществляется по одной двухполосной и одной однополосной рампе из тупика, расположенного к западу от объекта.
Предусмотрено автомобильных парковочных мест (254 подземных, включая 20 зависимых парковочных платформ, и 21 наземное парковочное место, включая 1 парковочное место, оборудованное станцией зарядки EV). Также предусмотрено 49 мест для парковки велосипедов.
Доступно для приобретения:
- Подземные парковочные места по цене от 23 600 евро
- Гаражи по цене от 29 000 евро
- Складские помещения по цене от 3 500 евро
Костинброд - небольшой, тихий, но динамично развивающийся городок на западе Болгарии, входящий в состав Софийской области. Благодаря близости к столице Софии (около 15 км), город становится все более привлекательным местом для жизни и ведения бизнеса.
Отличный выбор для тех, кто ищет баланс между городской динамикой и спокойствием менее населенного места. Благодаря развитой инфраструктуре и близости к Софии, город предлагает удобства, подходящие как для жизни, так и для ведения бизнеса.
Предполагаемый период строительства:
- Получен Акт 14
- Акт 15 - август 2027 года.
- Акт 16 - конец 2027 года.
Техническое задание:
Жилье должно быть оформлено в соответствии с BDS:
- Кирпич Wienerberger или эквивалент;
- Фасад в соответствии с архитектурным проектом - 10 см теплоизоляции / Clinker / CAPAROL или соответствующий;
- Оконные рамы ПВХ - Kömmerling, тройное остекление;
- Входные двери - Solid/SOLID, Dierre или эквивалент;
- Установка кабельного телевидения и Интернета;
- Молниезащита и заземление;
- Электропроводка в соответствии с утвержденным проектом - с выключателями и розетками;
- Сантехника - в соответствии с проектом, с подключением к розеткам;
- Отопление - газовое и кондиционирование;
- Газовая установка с индивидуальными газовыми котлами /без установки котлов и радиаторов/;
- Сконструированные воздуховоды для кондиционеров;
- Лифты высшего класса Schindler или эквивалент;
- Роскошные общие зоны, согласно архитектурному проекту.
- Пол — 9-миллиметровая звукоизоляционная мембрана из высокотехнологичной резины от итальянского технологического лидера Isolgomma. Поглощает ударный шум (шаги, детские игры, передвижение стульев) до 31 децибела. Изоляция работает в обе стороны — ваши шаги и активность в квартире не будут беспокоить соседей снизу. Материал сертифицирован по чистоте воздуха (Class I по выбросам VOC), что гарантирует отсутствие вредных испарений в вашем доме. Благодаря итальянскому качеству изоляция не теряет форму и эффективность даже через 5, 10 или 20 лет.
Схемы оплаты:
Бронирование апартаментов:
Каждая из квартир в проекте может быть забронирована немедленно при условии внесения невозвратного депозита в размере 2 000 евро, оплачиваемого наличными или банковским переводом. С внесенным депозитом квартира будет зарезервирована на срок 2 недели до подписания предварительного договора. Депозит является частью первого взноса.
Стандартная:
- 25% - предварительный договор
- 25% - Элевация
- 30% - Акт 14
- 10% - Акт 15
- 10% - Акт 16 (акт ввода в эксплуатацию)
При использовании банковского финансирования:
- 25% вычета по предварительному договору
- 75% при ипотечном кредитовании после Акта 16 (Акт ввода в эксплуатацию)
С 2% скидкой:
- 80% - предварительный договор
- 20% - Акт 16 (акт ввода в эксплуатацию)
С учетом скидки 1%:
1. 30% предварительный договор
2. 30% высота Било
3. 30% Акт 14
4. 10% Акт 15
В последние годы город зарекомендовал себя как привлекательный промышленный центр, несколько крупных компаний открыли здесь новые базы, привлекая значительные инвестиции и создавая тысячи рабочих мест. Эти инвестиции способствуют экономическому развитию города, делая его ключевым промышленным центром вблизи Софии.
Почему стоит выбрать дом в Амур Гарденс?
- Отличное расположение в 15 км от Софии.
- Зеленый и спокойный район, с прекрасными видами на природу, вдали от шума и загрязнения большого города.
- Четыре здания в комплексе будут построены из высококачественных материалов, обеспечивающих долговечность и энергоэффективность.
- Квартиры просторные, с функциональными планировками, большими окнами и большим количеством естественного света.
- Современные технологии, контроль доступа и современные лифты обеспечивают безопасность и удобство.
- Игровая площадка для развлечения маленьких жителей.
- Озелененные общие зоны создают ощущение уединения и гармонии с природой.
- Расположение вблизи зеленых холмов и парков предоставляет возможности для прогулок, занятий спортом и отдыха.
- Спрос на недвижимость в этом регионе растет, что делает покупку жилья в комплексе отличной инвестицией как для личного пользования, так и для сдачи в аренду.
- Спокойная и безопасная среда, идеально подходящая для растущих детей и людей, ценящих свое уединение.
- Закрытая концепция комплекса обеспечивает приватность и безопасность, а близость к столице дает вам доступ ко всем удобствам.
Вид недвижимости
Мы можем организовать просмотр недвижимости в удобное для вас время. Для этого свяжитесь с брокером, ответственным за предложение, и сообщите ему, когда вы хотели бы посмотреть.
Резервирование недвижимости
Объект может быть зарезервирован и снят с продажи с внесением залога, после чего просмотры с другими покупателями прекращаются и начинается подготовка документов для заключения предварительного и окончательного контракта. Пожалуйста, свяжитесь с ответственным брокером по данному объекту недвижимости для получения подробной информации о процедуре покупки и порядке оплаты.
Дополнительные услуги и послепродажное обслуживание.
Мы - компания с хорошей репутацией, и мы будем с вами не только во время покупки, но и после нее, предоставляя дополнительные услуги в соответствии с вашими требованиями, чтобы вы могли полноценно и беспрепятственно наслаждаться приобретенной недвижимостью. Среди услуг, которые мы можем предложить, - страхование движимого и недвижимого имущества, страхование жизни, медицинское и автомобильное страхование, строительно-ремонтные работы, меблировка, юридические и бухгалтерские услуги и т. д.
Продажа
эксклюзивноХит продаж
Люкс
Амур Гарденс - элитный комплекс с зелеными насаждениями, детской площадкой и магазинами недалеко от Софии
Вблизи г. СофияНовые дома с 1, 2, 3 спальнями и студиями - идеальный баланс между городской динамикой и спокойствием небольшого поселка
Характеристики
Тип недвижимости
Апартаменты (различные типы), Двухкомнатные квартиры, Трёхкомнатные квартиры, Четырехкомнатные квартиры, Многокомнатные квартиры, Магазины
Реф. номер
Sfa 82112
Площадь
58.52 м2 (жилая площадь: 49.11 м2 плюс общие части: 9.41 м2) еще
Спальни
1,2,3
Состояние
болгарский государственный стандарт
Этаж
2 из 8
Лифт
да
Меблировка
Немеблированная
Отопление
Отопление кондиционером / Газовая система отопления
Вид строительства
Кирпич, Новостройки
Год строительства
2027
Плата за обслуживание
0,51 евро; 1 лв/кв. м в месяц
Энергетический класс
A
Местоположение
Вблизи г. СофияОтправьте запрос на цены, планировки или осмотр
105 043 - € 309 068
(1 670 - 2 218 €/м2)
- €
- руб.
- $
Платежи с карты и PayPal.
Располагаем онлайн ПОС терминалом
Располагаем онлайн ПОС терминалом
Комплекс строится
Ввод в эксплуатацию: 01.12.2027 г
Агенству причитается комиссия
ПОДРОБНАЯ ИНФОРМАЦИЯ
Реф. номер: Sfa 82112
При звонке, пожалуйста, указывайте номер объекта недвижимости.