квартира 2 (реальная площадь + общие части), плюс сад 228.00 кв.м. - .
Представляем строящиеся односемейные дома, расположенные в одном из самых предпочитаемых населённых пунктов вблизи Пловдива — селе Белаштица. Локация сочетает тишину, чистый воздух и впечатляющий панорамный вид на город с быстрым и удобным доступом по асфальтированной дороге. Проект расположен на частной улице с контролируемым доступом через въездную порту.
Дома спроектированы с акцентом на комфорт и функциональность и идеально подходят для современного семейного проживания. Все объекты выполнены из кирпича, являются новым строительством, располагаются на двух этажах и имеют благоприятную ориентацию по всем сторонам света.
• Планируемый Акт 14 до 30 января 2026 г.
• Планируемый Акт 16 до 30 мая 2026 г.
• Отделка по стандарту БДС
• Электричество, вода и собственная очистная станция
Проект включает два типа домов с различной площадью застройки и размером двора.
Дом тип 1
Цена: 210 000 евро
Общая застроенная площадь: 153 кв.м.
Двор: 141 кв.м.
Этажи: 2
Спальни: 3
Ванные комнаты: 2 + гостевой санузел
Парковка: 1 парковочное место
Планировка:
• Первый этаж — прихожая с гостевым санузлом и кладовой под лестницей, просторная гостиная около 40 кв.м., отдельная кухня 10 кв.м. и выход на веранду и во двор
• Второй этаж — две детские спальни, общая ванная комната и родительская спальня с гардеробной, собственной ванной комнатой и выходом в чердачное складское помещение, а также терраса с панорамным видом на Пловдив
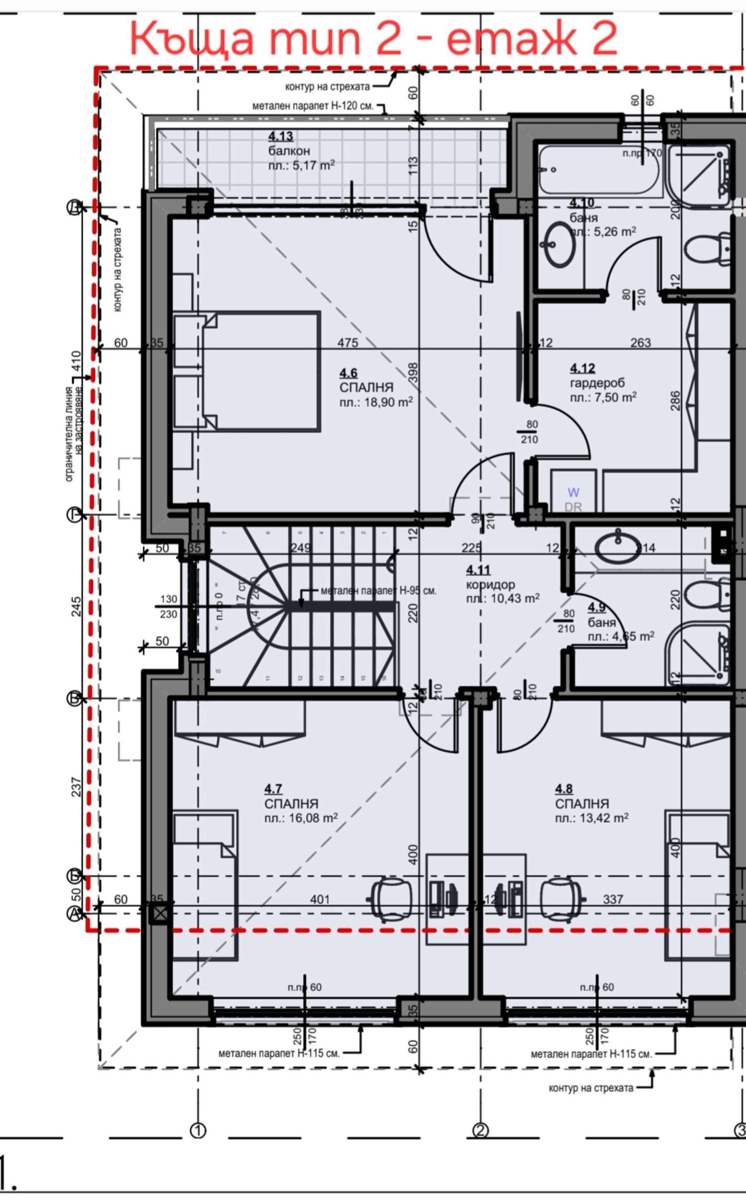
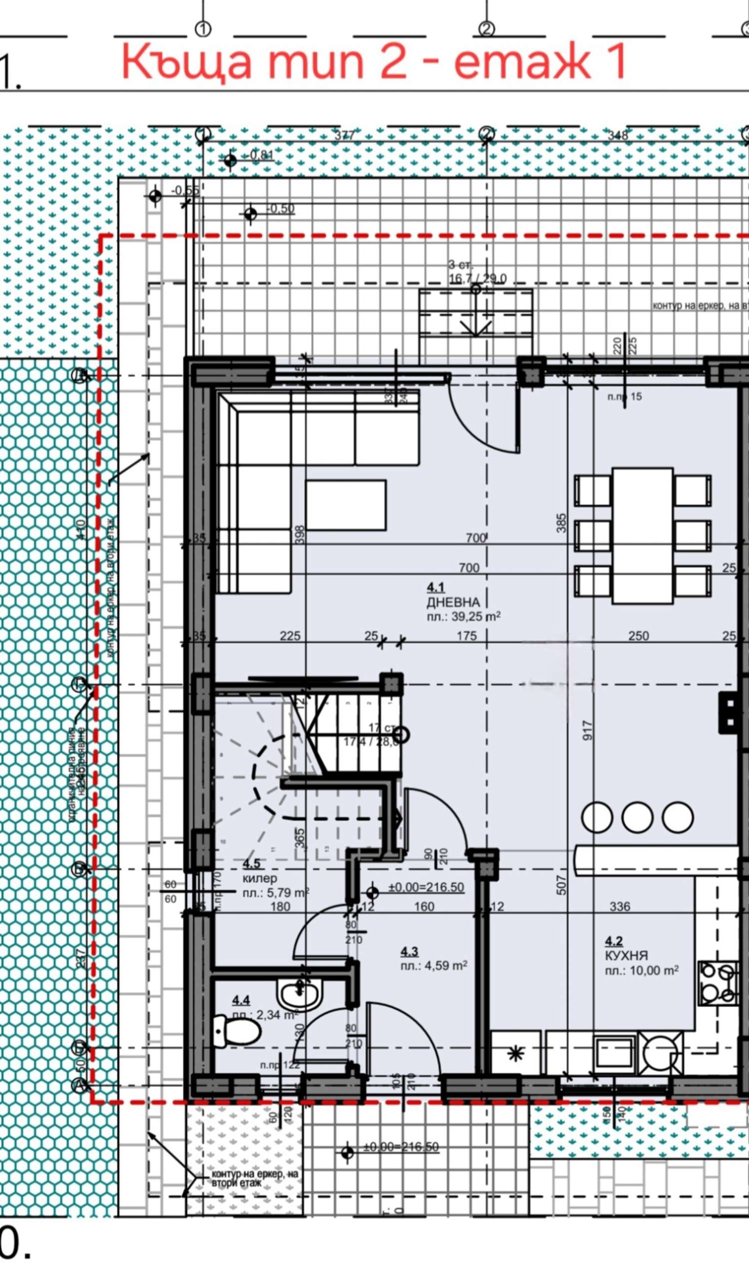
Дом тип 2
Цена: 229 000 евро
Общая застроенная площадь: 170 кв.м.
Двор: 228 кв.м.
Этажи: 2
Спальни: 3
Ванные комнаты: 2 + гостевой санузел
Парковка: 3 парковочных места
Планировка аналогична дому тип 1, но с большей застроенной площадью, более просторным двором и дополнительным внешним пространством. Дом располагает тремя парковочными местами рядом с участком.
• Первый этаж — прихожая с гостевым санузлом и кладовой под лестницей, гостиная 40 кв.м. с отдельной кухонной зоной 10 кв.м. и веранда
• Второй этаж — две детские спальни, ванная комната и просторная родительская спальня с гардеробной, собственной ванной комнатой и чердачным складом, а также терраса с великолепным видом на город
Показанные планировки относятся к двум домам, остальные являются зеркальными.
Преимущества:
• Частная улица с контролируемым доступом
• Панорамный вид на Пловдив
• Озеленённые частные дворы
• Тихая и престижная жилая среда
Посмотреть недвижимость
Мы можем организовать просмотр недвижимости в зависимости от нашего графика и доступности. Запросите просмотр, связавшись с ответственным агентом.
Резервирование недвижимости
Объект может быть зарезервирован и снят с продажи с внесением залога, после чего прекращаются просмотры с другими покупателями и начинается подготовка документов для заключения предварительного и окончательного договора. Пожалуйста, свяжитесь с ответственным брокером по данному объекту недвижимости для получения подробной информации о процедуре покупки и порядке оплаты.
Продажа
Дом в Новые односемейные дома с панорамным видом в селе Белаштица
Вблизи г. ПловдивСовременные двухэтажные дома высокого качества строительства с собственным двором рядом с Пловдивом
Характеристики
Тип недвижимости
Дом
Реф. номер
Plv 88912
Площадь
170.00 кв.м.
Спальни
3
Состояние
болгарский государственный стандарт
Количество етажей
2
Меблировка
Немеблированная
Отопление
Отопление кондиционером
Вид строительства
Кирпич, Новостройки
Окна выходят на:
Восток, Запад, На север, Юг
Год строительства
2026
Местоположение
с. Белащица, Вблизи г. ПловдивУдобства района
- Автобусная остановка "след Митница Кукленско шосе" 4.2 км - Автобус No: 11, 116
- Вокзал "Централна ЖП гара Пловдив" 7.6 км
- Аэропорт "Летище Пловдив" 7.9 км
- Детский сад 5.9 км
- Детский сад "Котаракът в чизми" 6.1 км
- Школа "ОУ „Пенчо Славейков“" 435 м (6 мин.)
- Школа "Св. Кирил и Методий" 1.5 км
- Колледж "Делта" 7.8 км
- Университет "Медицински колеж" 5.9 км
- Университет "Факултет по дентална медицина" 7.7 км
- Больница 3.8 км
- Больница "Еврохоспитал" 5.9 км
- Медицинский центр "Bodimed" 6.9 км
- Продуктовый магазин 5.1 км
- Супермаркет 337 м (5 мин.)
- Супермаркет 1.5 км
- Рынок "Ванесимо" 6.5 км
- Пекарня 5.4 км
- Зоо магазин "Zoomag" 5.7 км
- Торгово-развлекательный центр "Търговски център Юг" 6.9 км
- Банк "Postbank" 6.2 км
- Банк "Postbank" 6.2 км
- Банкомат "Банка ДСК" 11.0 км
- Аптека 1.4 км
- Почта "Български пощи" 3.8 км
- Почта "ПТТС 4016" 5.3 км
- Парикмахер 6.4 км
- Химчистка "Тепавицарай" 7.2 км
- Салон красоты 6.3 км
- Ветеринар 6.4 км
- Ресторан "Позитано 20" 2.1 км
- Ресторан "Двата ореха" 3.8 км
- Кафе 4.7 км
- Бар 6.4 км
- Дискотека 3.8 км
- Казино "Millenium" 6.3 км
- Фитнес "Fitness club "Flex"" 6.2 км
- Плавательный бассейн 419 м (6 мин.)
- Спортивные площадки "Зала „Олимпиада“" 6.2 км
- Теннисный корт 1.3 км
- Театр "Дом на културата "Борис Христов"" 8.4 км
- Театр "Драматичен театър Пловдив" 8.7 км
- Кино "Lucky Cinema" 8.4 км
- Музей "Епископска базилика на Филипопол" 8.6 км
- Музей "Fantasy - The non-museum of Plovdiv" 8.6 км
- Парк 215 м (3 мин.)
- Сад 3.8 км
- Парковка 324 м (4 мин.)
- Бензозаправочная станция "Лайт Брестник" 1.7 км
- Зарядная станция "Fines - Plovdiv KAM 919" 5.4 км
- Мойка автомобилей 3.4 км
- Автосервис 2.7 км
- Суд "Административен съд" 8.2 км
- Библиотека "American Corner" 8.1 км
- Церковь 1.2 км (15 мин.)
- Монастырь "Св. Георги Победоносец" 1.2 км (15 мин.)
ТРАНСПОРТ
УЧЕБНЫЕ ЗАВЕДЕНИЯ
МЕДИЦИНСКИЕ УЧРЕЖДЕНИЯ
ШОПИНГ
УСЛУГИ
ЗАВЕДЕНИЯ
СПОРТ И СВОБОДНОЕ ВРЕМЯ
ПРИРОДА И РАЗВЛЕЧЕНИЯ
АВТОМОБИЛЬНЫЕ УСЛУГИ
ЗДАНИЯ И ИНСТИТУЦИИ
ОТПРАВЬТЕ ЗАПРОС
€ 229 000
- €
- руб.
- $
Платежи с карты и PayPal.
Располагаем онлайн ПОС терминалом
Располагаем онлайн ПОС терминалом
Комплекс строится
Ввод в эксплуатацию: 30.05.2026 г
Агенству причитается комиссия
*/ ?>
ПОДРОБНАЯ ИНФОРМАЦИЯ
Реф. номер: Plv 88912
При звонке, пожалуйста, указывайте номер объекта недвижимости.
Стефан Моллов
Офис Пловдив ул. Петко Каравелов 26, эт. 4, офис 20г. Пловдив, Болгария, 4000 Все объекты (234)
Объектов недвижимости в этом комплексе
2
объектов недвижимости
2
свободных
0
проданных
0
забронированных