Новое предложение по покупке полностью южной двухкомнатной квартиры напротив Акта 15, рядом с Национальной академией спорта, Зимним дворцом спорта, высшими учебными заведениями и местами для развлечений, которые предлагает Студенческий городок, рядом с недавно построенным бульваром проф. Крикора Азаряна, с быстрым доступом до бульвара Симеоновско шоссе, кольцевой дороги, в нескольких минутах ходьбы от магазинов Kaufland и Fantastico, 10 минут от центра города. Ожидаемый акт 16 в 2026 году.
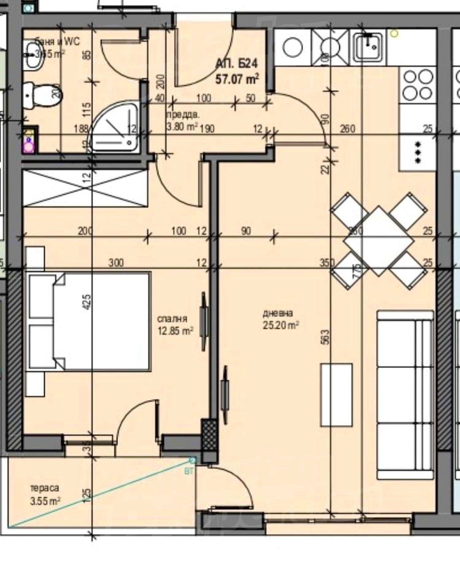
Квартира (общая площадь - 70.70 м2, чистая площадь - 57.07 м2 плюс места общего пользования - 13.63 м2) расположена на 4/6 этаже и состоит из:
• Прихожая
• Гостиная с кухонным уголком
• Спальня
• Ванная комната с туалетом
• Терраса с выходом из обеих комнат
• Кладовая
Недвижимость оформлена в соответствии с BDS:
• Шпаклевка и стяжка;
• Эл. разводка под ключ;
• Канализационная разводка;
• Окна ПВХ, пятикамерные, цвет антрацит (стекло Four Seasons);
• Шикарная входная армированная дверь;
• Газовое отопление.
Здание имеет монолитную железобетонную конструкцию:
• Наружные стены из керамического кирпича WIENERBERGER;
• Фасад HPL, теплоизоляция и штукатурный пакет BAUMIT 10 см.;
• Поручни из закаленного стекла по чертежам производителя, высотой 105 см от чистого пола;
• Элементы из натурального гранита/мрамора;
• Лифт испанский ORONA
• Предусмотрена система видеонаблюдения
• Роскошные места общего пользования.
Район предлагает множество коммерческих заведений на любой вкус, а непосредственная близость к кварталу Студенческий городок и его возможности делают это место еще более привлекательным. Удобный доступ к кольцевой дороге позволяет быстро добраться до торгового центра "Ринг Молл", бизнес-парка София, магазина "Икеа", банкомата "Тракия" и банкомата "Струма". Рядом будет построена новая станция метро.
Вид недвижимости
Мы можем организовать просмотр объекта в соответствии с нашим графиком и доступностью. Запросите просмотр, связавшись с брокером, ответственным за предложение, по электронной почте или телефону.
Резервирование недвижимости
Объект может быть зарезервирован и снят с продажи при внесении задатка, после чего прекращаются просмотры с другими покупателями и начинается подготовка документов для заключения предварительного и окончательного контракта. Свяжитесь с ответственным брокером для получения подробной информации о процедуре покупки и порядке оплаты.
Характеристики
Тип недвижимости
Двухкомнатная квартира
Реф. номер
Sfa 87849
Площадь
70.70 м2 (жилая площадь: 57.07 м2 плюс общие части: 13.63 м2) еще
Спальни
1
Состояние
болгарский государственный стандарт
Этаж
4 из 6
Лифт
да
Меблировка
Немеблированная
Отопление
Отопление кондиционером / Газовая система отопления
Вид строительства
Кирпич, Новостройки
Двор
нет
Год строительства
2026
Кондиционирование
Система кондиционирования
Окна выходят на:
Юг
Энергетический класс
B
Двухкомнатная квартира полностью ориентированная на юг, в здании «Люкс» 7 дополнительная информация:
Планы
Качество воздуха
Фото с воздуха
Генплан
360° градусов
Инфо пакет
Референтный номер: Sfa 87849
Местоположение
г. София, кв.«Малинова Долина»Удобства района
- Автобусная остановка "УЛ. 9 - ПО ЖЕЛАНИЕ" 273 м (4 мин.) - Автобус No: 69, 70, 123
- Детский сад "ДГ 190" 781 м (10 мин.)
- Университет "МВР - НИИ по криминалистика и криминология" 1.2 км (15 мин.)
- Продуктовый магазин "Dudi market" 1.1 км (13 мин.)
- Супермаркет "Lidl" 979 м (12 мин.)
- Торгово-развлекательный центр "София Ринг Мол" 1.1 км (14 мин.)
- Почта "Еконт" 443 м (6 мин.)
- Ресторан 1.2 км (15 мин.)
- Ресторан "ИКЕА Ресторант" 1.2 км (15 мин.)
- Бар 429 м (6 мин.)
- Фитнес "Pulse Energy Club" 1.0 км (13 мин.)
- Плавательный бассейн 435 м (6 мин.)
- Спортивные площадки "Спортен комплекс на НСА" 1.2 км (15 мин.)
- Теннисный корт 853 м (11 мин.)
- Сад 332 м (4 мин.)
- Парковка 301 м (4 мин.)
- Бензозаправочная станция 667 м (9 мин.)
- Зарядная станция "Renault" 890 м (11 мин.)
- Монастырь "Кармелитски манастир "Свети Дух"" 414 м (5 мин.)
ТРАНСПОРТ
УЧЕБНЫЕ ЗАВЕДЕНИЯ
ШОПИНГ
УСЛУГИ
ЗАВЕДЕНИЯ
СПОРТ И СВОБОДНОЕ ВРЕМЯ
ПРИРОДА И РАЗВЛЕЧЕНИЯ
АВТОМОБИЛЬНЫЕ УСЛУГИ
ЗДАНИЯ И ИНСТИТУЦИИ
ОТПРАВЬТЕ ЗАПРОС
Эта недвижимость забронирована
Пожалуйста, свяжитесь с нами, мы предложим Вам другие объекты, отвечающие Вашему запросу.
€ 162 610
- €
- руб.
- $
Платежи с карты и PayPal.
Располагаем онлайн ПОС терминалом
Располагаем онлайн ПОС терминалом
Эта недвижимость забронирована
Пожалуйста, свяжитесь с нами, мы предложим Вам другие объекты, отвечающие Вашему запросу.
*/ ?>
ПОДРОБНАЯ ИНФОРМАЦИЯ
Реф. номер: Sfa 87849
При звонке, пожалуйста, указывайте номер объекта недвижимости.

Магдалена Цоклинова
Офис Центральный, София р-он Лозенец, ул. Златен рог, эт. 4, офис 7, г. София, Болгария, 1407 Все объекты (100)ОТПРАВЬТЕ ЗАПРОС
Еще объекты недвижимости в кв. Малинова Долина

Продажа
эксклюзивноХит продаж
Малинова Долина, София Апартаментный комплекс - на стадии строительства
г. София , кв. «Малинова Долина»
Современные квартиры с просторной планировкой, качественным строительством
Малинова Долина, София Апартаментный комплекс - на стадии строительства - Современные квартиры с просторной планировкой, качественным строительством

Продажа
эксклюзивноХит продаж
Новые квартиры, современный дизайн и отличное расположение рядом со Спортивной Академией
г. София , кв. «Малинова Долина»
Последние двухкомнатные и трехкомнатные квартиры в новом здании с Актом 14 в кв. Малинова долина
Новые квартиры, современный дизайн и отличное расположение рядом со Спортивной Академией - Последние двухкомнатные и трехкомнатные квартиры в новом здании с Актом 14 в кв. Малинова долина

Продажа
Жилой дом из двух секций рядом с Национальной академией спорта
г. София , кв. «Малинова Долина»
Новые апартаменты с отличным расположением у подножия Витоши
Жилой дом из двух секций рядом с Национальной академией спорта - Новые апартаменты с отличным расположением у подножия Витоши

Продажа
новинка
Люкс
Роскошная двухкомнатная квартира в районе Малинова Долина
г. София , кв. «Малинова Долина»
Современное жильё с дизайнерским интерьером и высоким уровнем комфорта
Роскошная двухкомнатная квартира в районе Малинова Долина - Современное жильё с дизайнерским интерьером и высоким уровнем комфорта

Продажа
новинка
Жилой комплекс из двух зданий в кв. Долина Малинова
г. София , кв. «Малинова Долина»
Последнее студио с отличной локацией в кв. Малинова долина
Жилой комплекс из двух зданий в кв. Долина Малинова - Последнее студио с отличной локацией в кв. Малинова долина

Продажа
Новый жилой комплекс в Малиновой долине
г. София , кв. «Малинова Долина»
Качественное строительство и стильный внешний вид
Новый жилой комплекс в Малиновой долине - Качественное строительство и стильный внешний вид

Продажа
Южный трехкомнатный квартира в новом комплексе с Актом 16 в кв. Малинова долина
г. София , кв. «Малинова Долина»
Двухкомнатная квартира в современном здании рядом с магазином Фантастико
Южный трехкомнатный квартира в новом комплексе с Актом 16 в кв. Малинова долина - Двухкомнатная квартира в современном здании рядом с магазином Фантастико

Продажа
Подземные гаражи и парковочные места в районе Малинова Долина
г. София , кв. «Малинова Долина»
Гаражи и парковочные места в элитном комплексе из трёх многоквартирных жилых домов с Актом 16
Подземные гаражи и парковочные места в районе Малинова Долина - Гаражи и парковочные места в элитном комплексе из трёх многоквартирных жилых домов с Актом 16

Продажа
Акция
Просторное коммерческое помещение в современном новом здании
г. София , кв. «Малинова Долина»
Фитнес-зал в кв. Малиновая долина
Просторное коммерческое помещение в современном новом здании - Фитнес-зал в кв. Малиновая долина

Продажа
Инновационный жилой комплекс с Акт 16 в Малиновая долина
г. София , кв. «Малинова Долина»
Функциональные квартиры в 200 м от будущей станции метро
Инновационный жилой комплекс с Акт 16 в Малиновая долина - Функциональные квартиры в 200 м от будущей станции метро

Продажа
Новое здание с актом 16 между пл. Дианабад и Студенческим проездом
г. София , кв. «Малинова Долина»
Комфортабельные квартиры рядом со Студенческим парком, бульвар Дяганова. Г. М. Димитрова, университетов и метро
Новое здание с актом 16 между пл. Дианабад и Студенческим проездом - Комфортабельные квартиры рядом со Студенческим парком, бульвар Дяганова. Г. М. Димитрова, университетов и метро

Продажа
Четырехкомнатная квартира в Lux Building 9 в кв. Малинова долина
г. София , кв. «Малинова Долина»
Высокое качество строительства в районе с развитой инфраструктурой
Четырехкомнатная квартира в Lux Building 9 в кв. Малинова долина - Высокое качество строительства в районе с развитой инфраструктурой

Продажа
эксклюзивно
Стильный новый проект в Малинова долина – современное жилье в формирующейся приятной жилой зоне
г. София , кв. «Малинова Долина»
Современный комфорт и инвестиционная безопасность в сердце Малинова долина
Стильный новый проект в Малинова долина – современное жилье в формирующейся приятной жилой зоне - Современный комфорт и инвестиционная безопасность в сердце Малинова долина

Продажа
Жилой дом в непосредственной близости от НСА
г. София , кв. «Малинова Долина»
Апартаменты с 1, 2 или 3 спальнями в новом здании в кв. Малинова долина
Жилой дом в непосредственной близости от НСА - Апартаменты с 1, 2 или 3 спальнями в новом здании в кв. Малинова долина

Продажа
Красивая восточная квартира с собственным двором в Lux Building 4
г. София , кв. «Малинова Долина»
Двухкомнатная квартира с отделкой в кв. Малинова Долина
Красивая восточная квартира с собственным двором в Lux Building 4 - Двухкомнатная квартира с отделкой в кв. Малинова Долина

Продажа
Люкс
Элитные квартиры в здании у подножия Витоши - роскошь и высокие стандарты строительства
г. София , кв. «Малинова Долина»
Двухкомнатные, трехкомнатные квартиры и пентхаусы в небольшом здании класса люкс в одном из самых престижных районов Софии
Элитные квартиры в здании у подножия Витоши - роскошь и высокие стандарты строительства - Двухкомнатные, трехкомнатные квартиры и пентхаусы в небольшом здании класса люкс в одном из самых престижных районов Софии

Продажа
Современный комплекс из двух зданий у подножия Витоши
г. София , кв. «Малинова Долина»
Одно- и двухкомнатные квартиры с отличным расположением в Малинова долина
Современный комплекс из двух зданий у подножия Витоши - Одно- и двухкомнатные квартиры с отличным расположением в Малинова долина

Продажа
Небольшое бутиковое здание в районе Студенческий
г. София , кв. «Малинова Долина»
Ограниченное количество квартир с современным дизайном планировки
Небольшое бутиковое здание в районе Студенческий - Ограниченное количество квартир с современным дизайном планировки

Продажа
Жилой комплекс "Малинова Долина": квартиры на продажу
г. София , кв. «Малинова Долина»
Современный жилой комплекс с просторными планировками и газовой системой отопления
Жилой комплекс "Малинова Долина": квартиры на продажу - Современный жилой комплекс с просторными планировками и газовой системой отопления

Продажа
Закрытый комплекс из двух жилых домов в квартале Малиновая долина
г. София , кв. «Малинова Долина»
Высококлассное строительство в 200 метрах от Симеоновское шоссе
Закрытый комплекс из двух жилых домов в квартале Малиновая долина - Высококлассное строительство в 200 метрах от Симеоновское шоссе

Продажа
Небольшое здание всего на 16 квартир с удобным доступом к бул. Симеоновское шоссе
г. София , кв. «Малинова Долина»
Одно- и двухкомнатные квартиры в новом здании с отделкой из материалов высокого класса в районе Малинова долина
Небольшое здание всего на 16 квартир с удобным доступом к бул. Симеоновское шоссе - Одно- и двухкомнатные квартиры в новом здании с отделкой из материалов высокого класса в районе Малинова долина

Продажа
Квартира в г. София
г. София , кв. «Малинова Долина»
Продажа квартир, София
Квартира в г. София - Продажа квартир, София

Продажа
эксклюзивноХит продаж
Жилой дом в Малиновой долине рядом с НСА
г. София , кв. «Малинова Долина»
Солнечные квартиры в хорошем жилом районе с Актом 15. Последняя двухкомнатная квартира!
Жилой дом в Малиновой долине рядом с НСА - Солнечные квартиры в хорошем жилом районе с Актом 15. Последняя двухкомнатная квартира!
Еще объекты недвижимости в г. София

Продажа
эксклюзивноХит продаж
Central Park - 7 зданий с парковой территорией. Лидер рынка за 2024г!
г. София , кв. «Банишора»
Уникальный комплекс, воссоздающий стиль и атмосферу одноименного парка в Нью-Йорке
Central Park - 7 зданий с парковой территорией. Лидер рынка за 2024г! - Уникальный комплекс, воссоздающий стиль и атмосферу одноименного парка в Нью-Йорке

Продажа
эксклюзивно
Люкс
Synera Residence — новые квартиры в р-не Манастирски Ливади
г. София , кв. «Манастирски Ливади»
Здание, объединяющее городскую динамику и близость к природе
Synera Residence — новые квартиры в р-не Манастирски Ливади - Здание, объединяющее городскую динамику и близость к природе

Продажа
эксклюзивно
Жилой дом с удобным доступом к парку «Святой Троицы» и станции метро «Константин Величков»
г. София , кв. «Зона Б-5»
Новостройка с хорошим местоположением в столице
Жилой дом с удобным доступом к парку «Святой Троицы» и станции метро «Константин Величков» - Новостройка с хорошим местоположением в столице

Продажа
эксклюзивноХит продаж
Витоша Вью / Vitosha View - знаковый комплекс в Софии
г. София , кв. «Крыстова Вада»
Эксклюзивный жилой комплекс в 2 км от трасс горного курорта Витоша
Витоша Вью / Vitosha View - знаковый комплекс в Софии - Эксклюзивный жилой комплекс в 2 км от трасс горного курорта Витоша

Продажа
эксклюзивноХит продаж
Малинова Долина, София Апартаментный комплекс - на стадии строительства
г. София , кв. «Малинова Долина»
Современные квартиры с просторной планировкой, качественным строительством
Малинова Долина, София Апартаментный комплекс - на стадии строительства - Современные квартиры с просторной планировкой, качественным строительством

Продажа
Новостройка рядом с бизнес-парком «София» и метро
г. София , кв. «Младост 4»
Квартиры с 1, 2 и 3 спальнями в новом комплексе в р-не Младост 4
Новостройка рядом с бизнес-парком «София» и метро - Квартиры с 1, 2 и 3 спальнями в новом комплексе в р-не Младост 4

Продажа
эксклюзивноХит продаж
Новые квартиры, современный дизайн и отличное расположение рядом со Спортивной Академией
г. София , кв. «Малинова Долина»
Последние двухкомнатные и трехкомнатные квартиры в новом здании с Актом 14 в кв. Малинова долина
Новые квартиры, современный дизайн и отличное расположение рядом со Спортивной Академией - Последние двухкомнатные и трехкомнатные квартиры в новом здании с Актом 14 в кв. Малинова долина

Продажа
новинка
Резиденции с центральным расположением на бул. Сливница с Акт 14
г. София , «Центр»
Квартиры с 1, 2 или 3 спальнями в элитном 9-этажном здании
Резиденции с центральным расположением на бул. Сливница с Акт 14 - Квартиры с 1, 2 или 3 спальнями в элитном 9-этажном здании

Продажа
Жилой дом из двух секций рядом с Национальной академией спорта
г. София , кв. «Малинова Долина»
Новые апартаменты с отличным расположением у подножия Витоши
Жилой дом из двух секций рядом с Национальной академией спорта - Новые апартаменты с отличным расположением у подножия Витоши

Продажа
Новое здание всего с 16 квартирами в кв. Манастирски Ливади
г. София , кв. «Манастирски Ливади»
Квартиры с 1, 2 или 3 спальнями рядом с Витошей и с удобным сообщением с центром столицы
Новое здание всего с 16 квартирами в кв. Манастирски Ливади - Квартиры с 1, 2 или 3 спальнями рядом с Витошей и с удобным сообщением с центром столицы

Продажа
Люкс
Reina Sofia Residence - элитное жилье энергетического класса А рядом с Софийским зоопарком и Охотничьим парком
г. София , кв. «Крыстова Вада»
Последние магазины и апартаменты с 2 спальнями в комплексе с зелеными насаждениями и полученным Актом 16
Reina Sofia Residence - элитное жилье энергетического класса А рядом с Софийским зоопарком и Охотничьим парком - Последние магазины и апартаменты с 2 спальнями в комплексе с зелеными насаждениями и полученным Актом 16

Аренда
новинка
Двухуровневая квартира с двумя спальнями. Двухэтажный дуплекс на двух уровнях
г. София , кв. «Овча Купел»
Квартира с хорошим ремонтом рядом с главными улицами и удобным доступом к НБУ и парку
Двухуровневая квартира с двумя спальнями. Двухэтажный дуплекс на двух уровнях - Квартира с хорошим ремонтом рядом с главными улицами и удобным доступом к НБУ и парку

Аренда
новинка
Подземный гараж с коммуникативным расположением в Манастирски Ливади
г. София , кв. «Манастирски Ливади»
Гараж с роллетными воротами в закрытом комплексе
Подземный гараж с коммуникативным расположением в Манастирски Ливади - Гараж с роллетными воротами в закрытом комплексе

Аренда
новинка
Двухкомнатная квартира София
г. София , кв. «Люлин 6»
двухкомнатных квартир, София
Двухкомнатная квартира София - двухкомнатных квартир, София

Продажа
новинка
Трехкомнатная квартира в пешей доступности от Заимовского парка и станции метро «Театральная
г. София , кв. «Оборище»
Квартира с двумя спальнями, подвалом и мансардой в квартале Обориште
Трехкомнатная квартира в пешей доступности от Заимовского парка и станции метро «Театральная - Квартира с двумя спальнями, подвалом и мансардой в квартале Обориште

Продажа
новинка
Инвестиционная земля в г. София
г. София , кв. «Витоша»
Продажа инвестиционных земель, София
Инвестиционная земля в г. София - Продажа инвестиционных земель, София

Аренда
новинка
лучшее предложение
Двухкомнатная квартира с отличным расположением в Младость 1
г. София , кв. «Младост 1»
Меблированная квартира в панельном доме с ухоженными местами общего пользования
Двухкомнатная квартира с отличным расположением в Младость 1 - Меблированная квартира в панельном доме с ухоженными местами общего пользования

Аренда
новинка
Двухкомнатная квартира с отличным расположением, рядом с торговым центром Billa и Bulgaria Mall
г. София , кв. «Гоце Делчев»
Меблированная недвижимость с возможностью аренды парковочного места
Двухкомнатная квартира с отличным расположением, рядом с торговым центром Billa и Bulgaria Mall - Меблированная недвижимость с возможностью аренды парковочного места

Аренда
новинка
Коммерческое помещение в аренду в современном жилом комплексе
г. София , кв. «Банишора»
Отличная локация, высокий клиентский поток и инвестиционный потенциал
Коммерческое помещение в аренду в современном жилом комплексе - Отличная локация, высокий клиентский поток и инвестиционный потенциал

Аренда
новинка
Торговое помещение с отличной видимостью в большом комплексе в кв. Банишора
г. София , кв. «Банишора»
Магазин под аренду в новом жилом комплексе с около 1000 апартаментов
Торговое помещение с отличной видимостью в большом комплексе в кв. Банишора - Магазин под аренду в новом жилом комплексе с около 1000 апартаментов

Продажа
новинка
Просторная трехкомнатная квартира в закрытом комплексе рядом с НСА
г. София , кв. «Студентски Град»
Недвижимость с отличной планировкой – свет, уют и комфорт в современной городской среде
Просторная трехкомнатная квартира в закрытом комплексе рядом с НСА - Недвижимость с отличной планировкой – свет, уют и комфорт в современной городской среде

Продажа
новинка
Жилой дом с панорамным видом на Витошу и Люлинские горы
г. София , кв. «Овча Купел 2»
Последний трехкомнатный квартира в пешей доступности от метростанции «Мизия» и метростанции «Овча купел 2»
Жилой дом с панорамным видом на Витошу и Люлинские горы - Последний трехкомнатный квартира в пешей доступности от метростанции «Мизия» и метростанции «Овча купел 2»

Продажа
новинка
Люкс
Роскошная двухкомнатная квартира в районе Малинова Долина
г. София , кв. «Малинова Долина»
Современное жильё с дизайнерским интерьером и высоким уровнем комфорта
Роскошная двухкомнатная квартира в районе Малинова Долина - Современное жильё с дизайнерским интерьером и высоким уровнем комфорта

Аренда
новинка
Просторный магазин в аренду в новом жилом комплексе с около 1000 квартир в Софии
г. София , кв. «Банишора»
Торговое помещение с большим потенциалом в кв. Банишора
Просторный магазин в аренду в новом жилом комплексе с около 1000 квартир в Софии - Торговое помещение с большим потенциалом в кв. Банишора

Аренда
новинка
Двухкомнатная квартира в аренду рядом со станцией метро Люлин
г. София , кв. «Люлин 7»
Полностью меблированная квартира в ухоженном здании рядом с Фантастико и Сильвер центром
Двухкомнатная квартира в аренду рядом со станцией метро Люлин - Полностью меблированная квартира в ухоженном здании рядом с Фантастико и Сильвер центром
Подписывайтесь на наш канал
