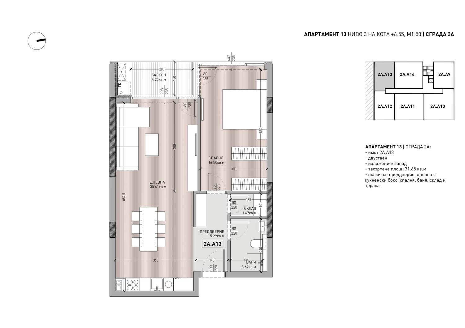
квартира 13 , общая площадь 85.12 кв.м. (жилая площадь 71.65 кв.м. + общие части 13.47 кв.м.).
Мы рады представить на продажу функциональные и просторные квартиры, 2-комнатные, 3-комнатные, 4-комнатные с современными планировками, отвечающие потребностям современного дома в бутиковом жилом комплексе, расположенном среди зелени и тишины, сочетающем современные удобства с уютной парковой атмосферой, рядом с новым детским садом, с быстрым и удобным доступом на ул. Тодора Каблешкова - важной дороги, соединяющей бульвар Болгария с бульваром Черный Враж. Ожидаемый акт 16 - 6.2029.
Внутренние дворы спроектированы как настоящий зеленый оазис с прекрасным садом, эффектными фонтанами и местами для отдыха, прогулок и занятий спортом - беговые дорожки и детская площадка создают комфортную и расслабляющую обстановку для всей семьи. Комплекс предлагает не только пространство, но и безопасность - с огороженным периметром и контролируемым доступом.
Комплекс включает в себя четыре здания по шесть этажей каждое, расположенные на участке площадью 8053 кв. м. На первом этаже спроектированы торговые помещения, а также апартаменты с внутренним двором для дополнительного комфорта и уединения. Архитектура комплекса стильная, с вниманием к каждой детали. Используются высококачественные материалы и соблюдается бескомпромиссная точность в видении и исполнении. Для жилой части предусмотрены два подземных уровня с гаражами и парковочными местами, а для коммерческих объектов - отдельный уровень с парковочными местами.
Весь фасад отделан натуральным камнем "Травертин" с впечатляющими деталями размером 180/80 см. За элегантным внешним видом скрывается каменная вата толщиной 10 см и плотностью 50 кг, которая обеспечивает чрезвычайно теплую и звукоизолирующую среду. Сверху уложена изоляционная мембрана, а вся система поддерживается алюминиевой подсистемой с нижней комбинацией, обеспечивающей долговечность и стабильность. Фасад вентилируемый, камень дополнительно пропитан водонепроницаемым слоем, который защищает здание от влаги и перепадов температур, сохраняя естественную красоту камня. В зоне окон предусмотрен дополнительный гидроизоляционный слой из PDM. Жилье оформлено в соответствии с БДС.
Корпус 1
• 6 надземных этажей
• 3 подземных уровня
• торговые точки на первом этаже
• два входа 1A и 1B
Здание 2
• 6 этажей над землей
• 2 подземных уровня
• торговые точки на первом этаже
• три входа 2A, 2B, 2C
Здание 3
• 6 надземных этажей
• 2 подземных уровня
• торговые точки на первом этаже
• 1 вход - 3A
Здание 4
• 6 этажей над землей
• 2 подземных этажа
• торговые помещения и гаражи на первом этаже
• два отдельных входа 4A и 4B
Идеальный выбор для современного, стильного и уютного дома, сочетающего в себе безупречную эстетику и комфорт, или для инвестиций в качественную и надежную недвижимость с отличными характеристиками и разнообразными планами оплаты в соответствии с этапами строительства и вашими личными возможностями.
Посмотреть недвижимость
Мы можем организовать просмотр недвижимости в соответствии с нашим графиком и доступностью. Запросите просмотр, связавшись с брокером, ответственным за предложение, по электронной почте или телефону.
Резервирование недвижимости
Объект может быть зарезервирован и снят с продажи при внесении задатка, после чего прекращаются просмотры с другими покупателями и начинается подготовка документов для заключения предварительного и окончательного контракта. Свяжитесь с ответственным брокером для получения подробной информации о процедуре покупки и порядке оплаты.
Продажа
новинка
Забронировано
Двухкомнатная квартира в Жилой комплекс класса «бутик» в квартале «Манастирски Ливади-Восток»
г. София, кв.«Манастирски Ливади»Функциональные и просторные квартиры, высококачественное строительство, окруженный зеленью, рядом с детским садом, с удобным доступом к основным бульварам
Прочитайте больше
Характеристики
Тип недвижимости
Двухкомнатная квартира
Реф. номер
Sfb 88614
Площадь
85.12 м2 (жилая площадь: 71.65 м2 плюс общие части: 13.47 м2) еще
Спальни
1
Состояние
болгарский государственный стандарт
Этаж
3 из 6
Лифт
да
Меблировка
Немеблированная
Отопление
Отопление кондиционером
Вид строительства
Кирпич, Новостройки
Окна выходят на:
Восток, Запад, На север, Юг
Год строительства
2029
Жилой комплекс класса «бутик» в квартале «Манастирски Ливади-Восток» дополнительная информация:
Планы
Планы
Качество воздуха
Меблировка
Фото с воздуха
Генплан
360° градусов
Инфо пакет
Референтный номер: Sfb 88614
Местоположение
г. София, кв.«Манастирски Ливади»Удобства района
- Автобусная остановка "УЛ. ЛУИ АЙЕР" 232 м (3 мин.) - Автобус No: 801
- Остановка троллейбуса "Ж.К. ГОЦЕ ДЕЛЧЕВ" 360 м (5 мин.) - Троллейбус No: 7, 8
- Остановка трамвая "КВ. МАНАСТИРСКИ ЛИВАДИ - ЗАПАД" 1.0 км (13 мин.) - Трамвай No: 27, 7
- Детский сад "ДГ 7 „Детелина“" 605 м (8 мин.)
- Детский сад "Слънчо" 885 м (11 мин.)
- Школа "73 СУ „Владислав Граматик“" 760 м (10 мин.)
- Школа "НЧ "Димитър Динев" - музикална школа" 859 м (11 мин.)
- Больница "МЦ “УниХоспитал”" 799 м (10 мин.)
- Больница "29-ти ДКЦ" 852 м (11 мин.)
- Медицинский центр "Vivid" 130 м (2 мин.)
- Продуктовый магазин "Super" 233 м (3 мин.)
- Супермаркет "Elysium Market" 247 м (3 мин.)
- Супермаркет "Виконт" 539 м (7 мин.)
- Пекарня "Бримекс" 445 м (6 мин.)
- Зоо магазин "Ава зоо" 458 м (6 мин.)
- Торгово-развлекательный центр "Мол България" 937 м (12 мин.)
- Банк "ОББ" 626 м (8 мин.)
- Банк "ОББ" 626 м (8 мин.)
- Аптека "SOpharmacy" 424 м (6 мин.)
- Почта "Speedy" 464 м (6 мин.)
- Почта "Еконт" 468 м (6 мин.)
- Парикмахер "Style House" 433 м (6 мин.)
- Химчистка "The clean spot" 463 м (6 мин.)
- Салон красоты "R" 406 м (5 мин.)
- Ветеринар "9вет" 581 м (7 мин.)
- Ресторан "Yany steak&wine" 397 м (5 мин.)
- Ресторан 598 м (8 мин.)
- Кафе "Mona Rosa" 451 м (6 мин.)
- Бар "Емералд Бар & Лаундж" 570 м (7 мин.)
- Фитнес 517 м (7 мин.)
- Плавательный бассейн 587 м (8 мин.)
- Спортивные площадки "Mettasense Yoga & Relax Area" 930 м (12 мин.)
- Теннисный корт 1.2 км (15 мин.)
- Кино "CineLand" 876 м (11 мин.)
- Парк 711 м (9 мин.)
- Сад 333 м (5 мин.)
- Парковка 26 м (1 мин.)
- Бензозаправочная станция "Interspeed" 534 м (7 мин.)
- Зарядная станция "Столичен електротранспорт" 432 м (6 мин.)
- Мойка автомобилей 399 м (5 мин.)
- Автосервис 395 м (5 мин.)
ТРАНСПОРТ
УЧЕБНЫЕ ЗАВЕДЕНИЯ
МЕДИЦИНСКИЕ УЧРЕЖДЕНИЯ
ШОПИНГ
УСЛУГИ
ЗАВЕДЕНИЯ
СПОРТ И СВОБОДНОЕ ВРЕМЯ
ПРИРОДА И РАЗВЛЕЧЕНИЯ
АВТОМОБИЛЬНЫЕ УСЛУГИ
ОТПРАВЬТЕ ЗАПРОС
Эта недвижимость забронирована
Пожалуйста, свяжитесь с нами, мы предложим Вам другие объекты, отвечающие Вашему запросу.
€ 234 200
- €
- руб.
- $
Платежи с карты и PayPal.
Располагаем онлайн ПОС терминалом
Располагаем онлайн ПОС терминалом
Эта недвижимость забронирована
Пожалуйста, свяжитесь с нами, мы предложим Вам другие объекты, отвечающие Вашему запросу.
*/ ?>
ПОДРОБНАЯ ИНФОРМАЦИЯ
Реф. номер: Sfb 88614
При звонке, пожалуйста, указывайте номер объекта недвижимости.
Иванка Стойкова
Офис София - Бъкстон р-он Бъкстон, бул. Братя Бъкстон 31А, г. София, Болгария Все объекты (121)
Объектов недвижимости в этом комплексе
148
объектов недвижимости
128
свободных
12
проданных
8
забронированных
ОТПРАВЬТЕ ЗАПРОС
Еще объекты недвижимости в в этом комплексе
Продажа
новинка
Забронировано
Трехкомнатная квартира в Жилой комплекс класса «бутик» в квартале «Манастирски Ливади-Восток»
г. София , кв. «Манастирски Ливади»
Функциональные и просторные квартиры, высококачественное строительство, окруженный зеленью, рядом с детским садом, с удобным доступом к основным бульварам
Продажа
новинка
Забронировано
Трехкомнатная квартира в Жилой комплекс класса «бутик» в квартале «Манастирски Ливади-Восток»
г. София , кв. «Манастирски Ливади»
Функциональные и просторные квартиры, высококачественное строительство, окруженный зеленью, рядом с детским садом, с удобным доступом к основным бульварам
Продажа
новинка
Забронировано
Трехкомнатная квартира в Жилой комплекс класса «бутик» в квартале «Манастирски Ливади-Восток»
г. София , кв. «Манастирски Ливади»
Функциональные и просторные квартиры, высококачественное строительство, окруженный зеленью, рядом с детским садом, с удобным доступом к основным бульварам
Продажа
новинка
Забронировано
Трехкомнатная квартира в Жилой комплекс класса «бутик» в квартале «Манастирски Ливади-Восток»
г. София , кв. «Манастирски Ливади»
Функциональные и просторные квартиры, высококачественное строительство, окруженный зеленью, рядом с детским садом, с удобным доступом к основным бульварам
Продажа
новинка
Забронировано
Трехкомнатная квартира в Жилой комплекс класса «бутик» в квартале «Манастирски Ливади-Восток»
г. София , кв. «Манастирски Ливади»
Функциональные и просторные квартиры, высококачественное строительство, окруженный зеленью, рядом с детским садом, с удобным доступом к основным бульварам
Продажа
новинка
Забронировано
Трехкомнатная квартира в Жилой комплекс класса «бутик» в квартале «Манастирски Ливади-Восток»
г. София , кв. «Манастирски Ливади»
Функциональные и просторные квартиры, высококачественное строительство, окруженный зеленью, рядом с детским садом, с удобным доступом к основным бульварам
Продажа
новинка
Забронировано
Трехкомнатная квартира в Жилой комплекс класса «бутик» в квартале «Манастирски Ливади-Восток»
г. София , кв. «Манастирски Ливади»
Функциональные и просторные квартиры, высококачественное строительство, окруженный зеленью, рядом с детским садом, с удобным доступом к основным бульварам
Продажа
новинка
Забронировано
Магазин в Жилой комплекс класса «бутик» в квартале «Манастирски Ливади-Восток»
г. София , кв. «Манастирски Ливади»
Функциональные и просторные квартиры, высококачественное строительство, окруженный зеленью, рядом с детским садом, с удобным доступом к основным бульварам
Продажа
новинка
Забронировано
Магазин в Жилой комплекс класса «бутик» в квартале «Манастирски Ливади-Восток»
г. София , кв. «Манастирски Ливади»
Функциональные и просторные квартиры, высококачественное строительство, окруженный зеленью, рядом с детским садом, с удобным доступом к основным бульварам
Продажа
новинка
Забронировано
Магазин в Жилой комплекс класса «бутик» в квартале «Манастирски Ливади-Восток»
г. София , кв. «Манастирски Ливади»
Функциональные и просторные квартиры, высококачественное строительство, окруженный зеленью, рядом с детским садом, с удобным доступом к основным бульварам
Продажа
новинка
Забронировано
Магазин в Жилой комплекс класса «бутик» в квартале «Манастирски Ливади-Восток»
г. София , кв. «Манастирски Ливади»
Функциональные и просторные квартиры, высококачественное строительство, окруженный зеленью, рядом с детским садом, с удобным доступом к основным бульварам
Продажа
новинка
Забронировано
Магазин в Жилой комплекс класса «бутик» в квартале «Манастирски Ливади-Восток»
г. София , кв. «Манастирски Ливади»
Функциональные и просторные квартиры, высококачественное строительство, окруженный зеленью, рядом с детским садом, с удобным доступом к основным бульварам
Продажа
новинка
Забронировано
Двухкомнатная квартира в Жилой комплекс класса «бутик» в квартале «Манастирски Ливади-Восток»
г. София , кв. «Манастирски Ливади»
Функциональные и просторные квартиры, высококачественное строительство, окруженный зеленью, рядом с детским садом, с удобным доступом к основным бульварам
Продажа
новинка
Забронировано
Трехкомнатная квартира в Жилой комплекс класса «бутик» в квартале «Манастирски Ливади-Восток»
г. София , кв. «Манастирски Ливади»
Функциональные и просторные квартиры, высококачественное строительство, окруженный зеленью, рядом с детским садом, с удобным доступом к основным бульварам
Продажа
новинка
Забронировано
Двухкомнатная квартира в Жилой комплекс класса «бутик» в квартале «Манастирски Ливади-Восток»
г. София , кв. «Манастирски Ливади»
Функциональные и просторные квартиры, высококачественное строительство, окруженный зеленью, рядом с детским садом, с удобным доступом к основным бульварам
Продажа
новинка
Забронировано
Трехкомнатная квартира в Жилой комплекс класса «бутик» в квартале «Манастирски Ливади-Восток»
г. София , кв. «Манастирски Ливади»
Функциональные и просторные квартиры, высококачественное строительство, окруженный зеленью, рядом с детским садом, с удобным доступом к основным бульварам
Продажа
новинка
Забронировано
Двухкомнатная квартира в Жилой комплекс класса «бутик» в квартале «Манастирски Ливади-Восток»
г. София , кв. «Манастирски Ливади»
Функциональные и просторные квартиры, высококачественное строительство, окруженный зеленью, рядом с детским садом, с удобным доступом к основным бульварам
Продажа
новинка
Забронировано
Трехкомнатная квартира в Жилой комплекс класса «бутик» в квартале «Манастирски Ливади-Восток»
г. София , кв. «Манастирски Ливади»
Функциональные и просторные квартиры, высококачественное строительство, окруженный зеленью, рядом с детским садом, с удобным доступом к основным бульварам
Продажа
новинка
Забронировано
Двухкомнатная квартира в Жилой комплекс класса «бутик» в квартале «Манастирски Ливади-Восток»
г. София , кв. «Манастирски Ливади»
Функциональные и просторные квартиры, высококачественное строительство, окруженный зеленью, рядом с детским садом, с удобным доступом к основным бульварам
Продажа
новинка
Забронировано
Трехкомнатная квартира в Жилой комплекс класса «бутик» в квартале «Манастирски Ливади-Восток»
г. София , кв. «Манастирски Ливади»
Функциональные и просторные квартиры, высококачественное строительство, окруженный зеленью, рядом с детским садом, с удобным доступом к основным бульварам
Продажа
новинка
Забронировано
Двухкомнатная квартира в Жилой комплекс класса «бутик» в квартале «Манастирски Ливади-Восток»
г. София , кв. «Манастирски Ливади»
Функциональные и просторные квартиры, высококачественное строительство, окруженный зеленью, рядом с детским садом, с удобным доступом к основным бульварам
Продажа
новинка
Забронировано
Трехкомнатная квартира в Жилой комплекс класса «бутик» в квартале «Манастирски Ливади-Восток»
г. София , кв. «Манастирски Ливади»
Функциональные и просторные квартиры, высококачественное строительство, окруженный зеленью, рядом с детским садом, с удобным доступом к основным бульварам
Продажа
новинка
Забронировано
Двухкомнатная квартира в Жилой комплекс класса «бутик» в квартале «Манастирски Ливади-Восток»
г. София , кв. «Манастирски Ливади»
Функциональные и просторные квартиры, высококачественное строительство, окруженный зеленью, рядом с детским садом, с удобным доступом к основным бульварам
Продажа
новинка
Забронировано
Трехкомнатная квартира в Жилой комплекс класса «бутик» в квартале «Манастирски Ливади-Восток»
г. София , кв. «Манастирски Ливади»
Функциональные и просторные квартиры, высококачественное строительство, окруженный зеленью, рядом с детским садом, с удобным доступом к основным бульварам
Продажа
новинка
Забронировано
Двухкомнатная квартира в Жилой комплекс класса «бутик» в квартале «Манастирски Ливади-Восток»
г. София , кв. «Манастирски Ливади»
Функциональные и просторные квартиры, высококачественное строительство, окруженный зеленью, рядом с детским садом, с удобным доступом к основным бульварам
Еще объекты недвижимости в кв. Манастирски Ливади
Продажа
эксклюзивноХит продаж
Люкс
SKY TOWERS by AMur — Новый архитектурный символ Софии
г. София , кв. «Манастирски Ливади»
Роскошный комплекс с панорамными видами, топовой локацией и впечатляющим силуэтом, расположенный между городской динамикой и горами.
SKY TOWERS by AMur — Новый архитектурный символ Софии - Роскошный комплекс с панорамными видами, топовой локацией и впечатляющим силуэтом, расположенный между городской динамикой и горами.
от € 244 894
(€/кв.м. 3 360 - €/кв.м. 5 688)Площадь: 65.38 - 314.59 кв.м.
Магдалена Тошева
Менеджер по работе с клиентами, София - Центральный
Продажа
эксклюзивно
Люкс
Synera Residence — новые квартиры в р-не Манастирски Ливади
г. София , кв. «Манастирски Ливади»
Здание, объединяющее городскую динамику и близость к природе
Synera Residence — новые квартиры в р-не Манастирски Ливади - Здание, объединяющее городскую динамику и близость к природе
от € 130 000
(€/кв.м. 2 492 - €/кв.м. 3 382)Площадь: 52.17 - 208.03 кв.м.
Даниела Тотева
Риэлтор, София - Центральный
Продажа
Новое здание всего с 16 квартирами в кв. Манастирски Ливади
г. София , кв. «Манастирски Ливади»
Квартиры с 2 или 3 спальнями рядом с Витошей и с удобным сообщением с центром столицы
Новое здание всего с 16 квартирами в кв. Манастирски Ливади - Квартиры с 2 или 3 спальнями рядом с Витошей и с удобным сообщением с центром столицы
Аренда
новинка
Люкс
Квартира в аренду с двумя парковочными местами в Манастирски Ливади
г. София , кв. «Манастирски Ливади»
Полностью меблированная квартира в аренду в г. София
Квартира в аренду с двумя парковочными местами в Манастирски Ливади - Полностью меблированная квартира в аренду в г. София
Аренда
новинка
Уютная двухкомнатная квартира в районе Манастирски Ливади
г. София , кв. «Манастирски Ливади»
Меблированная квартира рядом с Южным парком, школой «Владислав Граматик», детским садом
Уютная двухкомнатная квартира в районе Манастирски Ливади - Меблированная квартира рядом с Южным парком, школой «Владислав Граматик», детским садом
Продажа
Просторный торговый объект в престижном комплексе рядом с ключевыми бульварами в районе «Манастирски ливади»
г. София , кв. «Манастирски Ливади»
Современный бизнес-объект в новом здании – идеально подходит для магазина, детского центра, офиса или шоурума
Просторный торговый объект в престижном комплексе рядом с ключевыми бульварами в районе «Манастирски ливади» - Современный бизнес-объект в новом здании – идеально подходит для магазина, детского центра, офиса или шоурума
Продажа
Современный жилой дом в Манастирски ливади-изток
г. София , кв. «Манастирски Ливади»
Качественные квартиры с просторной и комфортной жилой площадью рядом с городскими достопримечательностями
Современный жилой дом в Манастирски ливади-изток - Качественные квартиры с просторной и комфортной жилой площадью рядом с городскими достопримечательностями
от € 199 500
(€/кв.м. 2 445 - €/кв.м. 3 726)Площадь: 81.61 - 180.64 кв.м.
Иванка Стойкова
Риэлтор / Партнер, София - Бъкстон
Продажа
Новый жилой проект в кв. Манастирски Ливади-Восток
г. София , кв. «Манастирски Ливади»
Современные дома с высокой энергоэффективностью рядом с современными удобствами
Новый жилой проект в кв. Манастирски Ливади-Восток - Современные дома с высокой энергоэффективностью рядом с современными удобствами
от € 131 189
(€/кв.м. 2 050 - €/кв.м. 2 750)Площадь: 62.77 - 112.79 кв.м.
Иванка Стойкова
Риэлтор / Партнер, София - Бъкстон
Продажа
Люкс
Роскошная однокомнатная квартира на бульваре Болгария
г. София , кв. «Манастирски Ливади»
Функциональное жилье, подходящее для офиса или проживания в культовом кошерном здании
Роскошная однокомнатная квартира на бульваре Болгария - Функциональное жилье, подходящее для офиса или проживания в культовом кошерном здании
Аренда
Магазин в аренду рядом с Bulgaria Mall с отличной видимостью
г. София , кв. «Манастирски Ливади»
Просторное коммерческое помещение с большим фасадом
Магазин в аренду рядом с Bulgaria Mall с отличной видимостью - Просторное коммерческое помещение с большим фасадом
Аренда
Люкс
Просторный офис с прекрасным видом на гору
г. София , кв. «Манастирски Ливади»
Офис без мебели с удобным расположением в квартале Манастирски ливади
Просторный офис с прекрасным видом на гору - Офис без мебели с удобным расположением в квартале Манастирски ливади
Аренда
Меблированная студия с панорамной террасой в Манастирски ливади
г. София , кв. «Манастирски Ливади»
Современное городское жильё с просторной террасой и видом на Витошу
Меблированная студия с панорамной террасой в Манастирски ливади - Современное городское жильё с просторной террасой и видом на Витошу
Аренда
Офис в г. София
г. София , кв. «Манастирски Ливади»
Аренда офисов, София
Офис в г. София - Аренда офисов, София
Аренда
Просторная 3-комнатная квартира в аренду в Манастирски Ливади
г. София , кв. «Манастирски Ливади»
Светлая и уютная квартира в одном из самых востребованных районов Софии
Просторная 3-комнатная квартира в аренду в Манастирски Ливади - Светлая и уютная квартира в одном из самых востребованных районов Софии
Продажа
Элитный жилой комплекс в Манастирски Ливади – Восточный район
г. София , кв. «Манастирски Ливади»
Новые дома с современной архитектурой и престижным расположением от проверенного застройщика
Элитный жилой комплекс в Манастирски Ливади – Восточный район - Новые дома с современной архитектурой и престижным расположением от проверенного застройщика
от € 182 607
(€/кв.м. 2 319 - €/кв.м. 3 179)Площадь: 71.50 - 193.67 кв.м.
Михаил Кръстев
Риэлтор, София - Центральный
Продажа
Жилой комплекс высокого класса в Манастирски ливади – Восток
г. София , кв. «Манастирски Ливади»
Современный комплекс с отличным расположением, зеленой средой и долгосрочной инвестиционной ценностью
Жилой комплекс высокого класса в Манастирски ливади – Восток - Современный комплекс с отличным расположением, зеленой средой и долгосрочной инвестиционной ценностью
от € 163 827
(€/кв.м. 2 260 - €/кв.м. 3 075)Площадь: 71.40 - 180.23 кв.м.
Михаил Кръстев
Риэлтор, София - Центральный
Продажа
Южная двухкомнатная квартира по акционной цене в районе Манастирски Ливади
г. София , кв. «Манастирски Ливади»
Современная архитектура, надёжный застройщик и панорамный вид на гору Витоша
Южная двухкомнатная квартира по акционной цене в районе Манастирски Ливади - Современная архитектура, надёжный застройщик и панорамный вид на гору Витоша
Продажа
Люкс
Двухкомнатная квартира по акционной цене в кв. Манастирски ливади
г. София , кв. «Манастирски Ливади»
Квартира с южной ориентацией на среднем этаже с видом на Копитото
Двухкомнатная квартира по акционной цене в кв. Манастирски ливади - Квартира с южной ориентацией на среднем этаже с видом на Копитото
Продажа
Светлая трехкомнатная квартира в районе Манастирски ливади
г. София , кв. «Манастирски Ливади»
Новое жилье высокого класса с городской панорамой
Светлая трехкомнатная квартира в районе Манастирски ливади - Новое жилье высокого класса с городской панорамой
Продажа
Просторная южная трёхкомнатная квартира в районе Манастирски Ливади, София
г. София , кв. «Манастирски Ливади»
Светлая квартира с двумя спальнями и двумя ванными комнатами в отличной локации
Просторная южная трёхкомнатная квартира в районе Манастирски Ливади, София - Светлая квартира с двумя спальнями и двумя ванными комнатами в отличной локации
Продажа
Двухкомнатная квартира по акционной цене в районе Манастирски ливади
г. София , кв. «Манастирски Ливади»
Новое жильё с южной ориентацией и панорамным видом на Витошу и Копитото
Двухкомнатная квартира по акционной цене в районе Манастирски ливади - Новое жильё с южной ориентацией и панорамным видом на Витошу и Копитото
Продажа
-6%
Люкс
Трёхкомнатная квартира в современном жилом доме в кв. Манастирски ливади
г. София , кв. «Манастирски Ливади»
Премиум качество, функциональная планировка и отличное расположение
Трёхкомнатная квартира в современном жилом доме в кв. Манастирски ливади - Премиум качество, функциональная планировка и отличное расположение
Аренда
Наружные парковочные места в аренду в районе Манастирски ливади – Запад
г. София , кв. «Манастирски Ливади»
Парковочные места в здании с Актом 16, контролируемым доступом и престижным расположением рядом с Amur Residence
Наружные парковочные места в аренду в районе Манастирски ливади – Запад - Парковочные места в здании с Актом 16, контролируемым доступом и престижным расположением рядом с Amur Residence
Продажа
Южная двухкомнатная квартира с уникальным видом на Копитото – Манастирски Ливади
г. София , кв. «Манастирски Ливади»
Современная архитектура, надёжный застройщик и отличное расположение
Южная двухкомнатная квартира с уникальным видом на Копитото – Манастирски Ливади - Современная архитектура, надёжный застройщик и отличное расположение
Продажа
Люкс
Жилой проект высокого класса в районе Манастирски ливади – престиж, комфорт и современное видение
г. София , кв. «Манастирски Ливади»
Современная архитектура, проверенный инвестор и отличная локация на юге Софии
Жилой проект высокого класса в районе Манастирски ливади – престиж, комфорт и современное видение - Современная архитектура, проверенный инвестор и отличная локация на юге Софии
Еще объекты недвижимости в г. София
Продажа
лучшее предложение
Просторная четырёхкомнатная квартира с двором и парковочным местом в районе Бояна
г. София , кв. «Бояна»
Новое жильё с тремя спальнями, кабинетом и юго-западной ориентацией в небольшом бутик-здании
Просторная четырёхкомнатная квартира с двором и парковочным местом в районе Бояна - Новое жильё с тремя спальнями, кабинетом и юго-западной ориентацией в небольшом бутик-здании
Продажа
эксклюзивноХит продаж
Central Park – 7 зданий с парком площадью 12 декара. Здания А, Б и В получили Акт 16!
г. София , кв. «Банишора»
Уникальный жилой комплекс, воссоздающий стиль и атмосферу знаменитого парка Central Park в Нью-Йорке. Самый продаваемый комплекс в 2022, 2023, 2024 и 2025 годах!
Central Park – 7 зданий с парком площадью 12 декара. Здания А, Б и В получили Акт 16! - Уникальный жилой комплекс, воссоздающий стиль и атмосферу знаменитого парка Central Park в Нью-Йорке. Самый продаваемый комплекс в 2022, 2023, 2024 и 2025 годах!
от € 185 874
(€/кв.м. 2 200 - €/кв.м. 2 800)Площадь: 71.49 - 187.57 кв.м.
Иван Крумов
Риэлтор, София - Центральный
Продажа
эксклюзивноХит продаж
Люкс
SKY TOWERS by AMur — Новый архитектурный символ Софии
г. София , кв. «Манастирски Ливади»
Роскошный комплекс с панорамными видами, топовой локацией и впечатляющим силуэтом, расположенный между городской динамикой и горами.
SKY TOWERS by AMur — Новый архитектурный символ Софии - Роскошный комплекс с панорамными видами, топовой локацией и впечатляющим силуэтом, расположенный между городской динамикой и горами.
от € 244 894
(€/кв.м. 3 360 - €/кв.м. 5 688)Площадь: 65.38 - 314.59 кв.м.
Магдалена Тошева
Менеджер по работе с клиентами, София - Центральный
Продажа
эксклюзивно
Люкс
Synera Residence — новые квартиры в р-не Манастирски Ливади
г. София , кв. «Манастирски Ливади»
Здание, объединяющее городскую динамику и близость к природе
Synera Residence — новые квартиры в р-не Манастирски Ливади - Здание, объединяющее городскую динамику и близость к природе
от € 130 000
(€/кв.м. 2 492 - €/кв.м. 3 382)Площадь: 52.17 - 208.03 кв.м.
Даниела Тотева
Риэлтор, София - Центральный
Продажа
эксклюзивно
Люкс
Corner Park – новый жилой комплекс в Софии, район Сухая река
г. София , кв. «Сухата Река»
Современная архитектура, отличное расположение и гибкие условия оплаты
Corner Park – новый жилой комплекс в Софии, район Сухая река - Современная архитектура, отличное расположение и гибкие условия оплаты
от € 152 820
(€/кв.м. 1 850 - €/кв.м. 2 500)Площадь: 67.92 - 249.28 кв.м.
Иван Каменов
Старший консультант, Центральный
Продажа
эксклюзивно
Стильный новый проект в Малинова долина – современное жилье в формирующейся приятной жилой зоне
г. София , кв. «Малинова Долина»
Современный комфорт и инвестиционная безопасность в сердце Малинова долина
Стильный новый проект в Малинова долина – современное жилье в формирующейся приятной жилой зоне - Современный комфорт и инвестиционная безопасность в сердце Малинова долина
Продажа
эксклюзивноХит продаж
Квартиры с одной и двумя спальнями рядом с НСА
г. София , кв. «Малинова Долина»
Последние предложения в новом здании с Актом 15 в кв. Малинова долина
Квартиры с одной и двумя спальнями рядом с НСА - Последние предложения в новом здании с Актом 15 в кв. Малинова долина
от € 176 400
(€/кв.м. 1 756 - €/кв.м. 2 500)Площадь: 70.56 - 113.03 кв.м.
Магдалена Цоклинова
Риэлтор , Центральный
Продажа
Резиденции с центральным расположением на бул. Сливница с Акт 14
г. София , «Центр»
Квартиры с 1, 2 или 3 спальнями в элитном 9-этажном здании
Резиденции с центральным расположением на бул. Сливница с Акт 14 - Квартиры с 1, 2 или 3 спальнями в элитном 9-этажном здании
от € 133 656
(€/кв.м. 2 550 - €/кв.м. 3 180)Площадь: 42.03 - 170.01 кв.м.
Иванка Стойкова
Риэлтор / Партнер, София - Бъкстон
Продажа
Новое здание всего с 16 квартирами в кв. Манастирски Ливади
г. София , кв. «Манастирски Ливади»
Квартиры с 2 или 3 спальнями рядом с Витошей и с удобным сообщением с центром столицы
Новое здание всего с 16 квартирами в кв. Манастирски Ливади - Квартиры с 2 или 3 спальнями рядом с Витошей и с удобным сообщением с центром столицы
Продажа
эксклюзивно
Элитный городской комплекс из двух корпусов Green View Apartments в районе Княжево
г. София , кв. «Княжево»
2- и 3-комнатные квартиры, качественное строительство
Элитный городской комплекс из двух корпусов Green View Apartments в районе Княжево - 2- и 3-комнатные квартиры, качественное строительство
от € 150 000
(€/кв.м. 1 897 - €/кв.м. 3 400)Площадь: 68.07 - 268.82 кв.м.
Иванка Стойкова
Риэлтор / Партнер, София - Бъкстон
Продажа
эксклюзивноХит продаж
Витоша Вью / Vitosha View - знаковый комплекс в Софии
г. София , кв. «Крыстова Вада»
Эксклюзивный жилой комплекс в 2 км от трасс горного курорта Витоша
Витоша Вью / Vitosha View - знаковый комплекс в Софии - Эксклюзивный жилой комплекс в 2 км от трасс горного курорта Витоша
от € 429 000
(€/кв.м. 2 618 - €/кв.м. 2 715)Площадь: 163.89 - 163.89 кв.м.
Магдалена Тошева
Менеджер по работе с клиентами, София - Центральный
Продажа
Люкс
Reina Sofia Residence - элитное жилье энергетического класса А рядом с Софийским зоопарком и Охотничьим парком
г. София , кв. «Крыстова Вада»
Последние апартаменты в комплексе с зелеными насаждениями и полученным Актом 16
Reina Sofia Residence - элитное жилье энергетического класса А рядом с Софийским зоопарком и Охотничьим парком - Последние апартаменты в комплексе с зелеными насаждениями и полученным Актом 16
от € 261 000
(€/кв.м. 3 356 - €/кв.м. 4 189)Площадь: 76.31 - 139.88 кв.м.
Магдалена Тошева
Менеджер по работе с клиентами, София - Центральный
Продажа
Жилой дом из двух секций рядом с Национальной академией спорта
г. София , кв. «Малинова Долина»
Новые апартаменты с отличным расположением у подножия Витоши
Жилой дом из двух секций рядом с Национальной академией спорта - Новые апартаменты с отличным расположением у подножия Витоши
от € 120 395
(€/кв.м. 2 350 - €/кв.м. 2 560)Площадь: 49.75 - 160.33 кв.м.
Иванка Стойкова
Риэлтор / Партнер, София - Бъкстон
Продажа
эксклюзивноХит продаж
Малинова Долина, София Апартаментный комплекс - на стадии строительства
г. София , кв. «Малинова Долина»
Современные квартиры с просторной планировкой, качественным строительством
Малинова Долина, София Апартаментный комплекс - на стадии строительства - Современные квартиры с просторной планировкой, качественным строительством
от € 310 000
(€/кв.м. 1 863 - €/кв.м. 2 042)Площадь: 151.80 - 191.62 кв.м.
Магдалена Цоклинова
Риэлтор , Центральный
Продажа
Новостройка рядом с бизнес-парком «София» и метро
г. София , кв. «Младост 4»
Квартиры с 1, 2 и 3 спальнями в новом комплексе в р-не Младост 4
Новостройка рядом с бизнес-парком «София» и метро - Квартиры с 1, 2 и 3 спальнями в новом комплексе в р-не Младост 4
от € 219 678
(€/кв.м. 2 350 - €/кв.м. 2 705)Площадь: 87.80 - 202.38 кв.м.
Николай Попов
Риэлтор, София - Центральный
Аренда
новинка
Люкс
Роскошная трехкомнатная квартира в Лозенец
г. София , кв. «Лозенец»
Престижная квартира с 2 парковочными местами в цене аренды
Роскошная трехкомнатная квартира в Лозенец - Престижная квартира с 2 парковочными местами в цене аренды
Продажа
новинка
Люкс
Роскошный комплекс из 13 зданий с 30 акрами зеленых насаждений, 9 игровыми площадками и 18 торговыми точками
г. София , кв. «Хладилника»
Современное городское жилье рядом с Охотничьим парком, с удобным доступом к станции метро Витоша
Роскошный комплекс из 13 зданий с 30 акрами зеленых насаждений, 9 игровыми площадками и 18 торговыми точками - Современное городское жилье рядом с Охотничьим парком, с удобным доступом к станции метро Витоша
от € 280 000
(€/кв.м. 2 492 - €/кв.м. 5 866)Площадь: 76.08 - 308.09 кв.м.
Магдалена Цоклинова
Риэлтор , Центральный
Продажа
новинка
Люкс
Продажа роскошных апартаментов в квартале Хаджи Димитар в Софии
г. София , кв. «Хаджи Димитр»
Роскошная жизнь в самом сердце Софии с превосходными удобствами.
Продажа роскошных апартаментов в квартале Хаджи Димитар в Софии - Роскошная жизнь в самом сердце Софии с превосходными удобствами.
от € 187 000
(€/кв.м. 2 560 - €/кв.м. 2 721)Площадь: 68.72 - 157.03 кв.м.
Николай Попов
Риэлтор, София - Центральный
Аренда
новинка
Люкс
Квартира в аренду с двумя парковочными местами в Манастирски Ливади
г. София , кв. «Манастирски Ливади»
Полностью меблированная квартира в аренду в г. София
Квартира в аренду с двумя парковочными местами в Манастирски Ливади - Полностью меблированная квартира в аренду в г. София
Продажа
новинка
Люкс
Просторная четырехкомнатная квартира в районе Хаджи Димитар
г. София , кв. «Хаджи Димитр»
Высококлассное здание в 350 м от метро и в пешей доступности от идеального центра столицы
Просторная четырехкомнатная квартира в районе Хаджи Димитар - Высококлассное здание в 350 м от метро и в пешей доступности от идеального центра столицы
Аренда
новинка
Люкс
Панорамная квартира с подземным парковочным местом в районе Крастова Вадафия
г. София , кв. «Крыстова Вада»
Современная двухкомнатная квартира с новой мебелью и бытовой техникой рядом с бульваром Черни Врах
Панорамная квартира с подземным парковочным местом в районе Крастова Вадафия - Современная двухкомнатная квартира с новой мебелью и бытовой техникой рядом с бульваром Черни Врах
Продажа
новинка
эксклюзивно
лучшее предложение
Просторная трёхкомнатная квартира в районе Свобода
г. София , кв. «Свобода»
Светлая и функциональная квартира рядом с Северным парком
Просторная трёхкомнатная квартира в районе Свобода - Светлая и функциональная квартира рядом с Северным парком
Продажа
новинка
Люкс
Просторный мезонет с 3 спальнями и видом на Витошу
г. София , кв. «Хладилника»
Современная квартира в престижном районе рядом с Paradise Center
Просторный мезонет с 3 спальнями и видом на Витошу - Современная квартира в престижном районе рядом с Paradise Center
Продажа
новинка
эксклюзивно
Участок для семейных домов в местности «Смырдана», район Люлин
г. София , кв. «Люлин 6»
Участок с электричеством, водой и отличными параметрами для строительства
Участок для семейных домов в местности «Смырдана», район Люлин - Участок с электричеством, водой и отличными параметрами для строительства
Продажа
новинка
Современный закрытый жилой комплекс в районе Овча Купел 2
г. София , кв. «Овча Купел 2»
Новый проект у подножия Витоши с удобным доступом к метро
Современный закрытый жилой комплекс в районе Овча Купел 2 - Новый проект у подножия Витоши с удобным доступом к метро
от € 113 000
(€/кв.м. 1 614 - €/кв.м. 1 916)Площадь: 62.33 - 102.23 кв.м.
Иванка Стойкова
Риэлтор / Партнер, София - Бъкстон
Подписывайтесь на наш канал