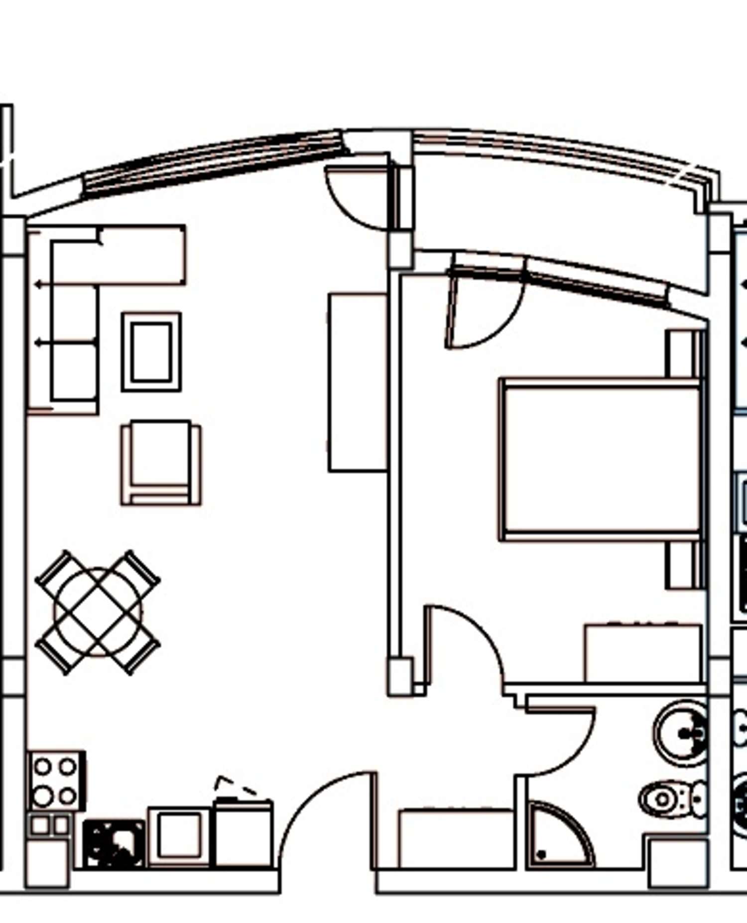
квартира 14 , общая площадь 66.45 кв.м. (жилая площадь 55.34 кв.м.).
Мы рады представить вам исключительно высококлассные объекты на первой линии моря, в метрах от пляжа в Шкорпиловци. Изысканный комплекс, расположенный в непосредственной близости от одного из самых красивых пляжей на побережье Черного моря и заповедника. Проект, воплощающий гармонию природы с роскошью и комфортом.
Комплекс состоит из 10 дизайнерских зданий с великолепным ландшафтно оформленным садом. Прекрасный оазис как для семей с детьми, так и для пар и всех, кто ищет уют, люкс, услуги уникального SPA-центра, превосходную кухню и качество предлагаемых услуг.
Курортные квартиры предлагаются на продажу с качественной отделкой, целостной меблировкой и оборудованием.
Комплекс круглогодичный, предлагает первоклассные удобства:
• 2 больших ресторана с прекрасным видом на море
• коктейль-бар
• пиццерия
• СПА-центр и бальнеология
• Фитнес-зал
• магазины
• детский сад
• пляжные бары
• яхт-клуб
• парковка
Комплекс расположен в 40 км от Варны и в 12 км от Камчия. Комплекс подходит для спокойного отдыха на пляже. Шкорпиловци сочетает в себе все, что нужно для полного расслабления - длинная пляжная полоса, горный район и минеральные источники, которые благотворно влияют на здоровье человека.
Зачем покупать недвижимость в комплексе?
• Апартаменты класса люкс
• Диапазон цен, соответствующий каждому бюджету
• Легкий доступ к пляжу
• 40 км от международного аэропорта Варны
• Здоровая среда, сочетающая морской и горный воздух
• Курортная деревня недалеко от панорамной дороги Варна-Бургас, между Камчия и Бяла
• Район идеально подходит для рыбалки и прогулок по пляжу.
Смотр недвижимости
Мы готовы организовать смотр недвижимости в удобное для вас время. Обратитесь к ответственному менеджеру по продажам и проинформируйте его, когда бы Вы хотели приехать на смотровой тур. Мы можем помочь Вам забронировать авиабилет и отель, а также помочь Вам оформить визу и необходимую страховку.
Бронирование недвижимости
Вы можете забронировать недвижимость, заплатив невозмещаемый задаток в размере 2 000 евро наличным платежом, кредитной картой или банковским переводом на фирменный счет компании. После получения задатка недвижимость бронируется, осмотры с другими потенциальными покупателями производиться не будут, и начнется изготовление необходимых документов по оформлению сделки. Пожалуйста, обратитесь к ответственному за данный объект менеджеру по продажам для получения подробной информации относительно процедуры покупки и способов оплаты.
Продажа
ПЕРВАЯ ЛИНИЯ
Двухкомнатная квартира в Апартаменты на первой линии в элитном комплексе в с. Шкорпиловци
с. ШкорпиловциКвартиры в первоклассном комплексе в метрах от пляжа
Характеристики
Тип недвижимости
Двухкомнатная квартира
Реф. номер
Vna 70822
Площадь
66.45 кв.м. еще
Спальни
1
Состояние
отличное
Этаж
1 из 5
Лифт
да
Меблировка
Полностью меблированная
Отопление
Отопление кондиционером
Вид строительства
Кирпич, Новостройки
Окна выходят на:
Восток, Запад, На север, Юг
Год строительства
2013
Акт 16
да
Местоположение
с. ШкорпиловциУдобства района
- Больница "Отделение УМБАЛ "Света Марина"" 1.1 км (14 мин.)
- Продуктовый магазин "Kiosk" 369 м (5 мин.)
- Супермаркет 204 м (3 мин.)
- Супермаркет "Аглая" 264 м (4 мин.)
- Ресторан "Veni Vidi Vici" 277 м (4 мин.)
- Ресторан "Златната рибка" 312 м (4 мин.)
- Бар "Орхидея" 496 м (6 мин.)
- Плавательный бассейн 278 м (4 мин.)
- Кино "Лятно кино" 256 м (4 мин.)
- Парковка 276 м (4 мин.)
- Зарядная станция "Fines Charging" 309 м (4 мин.)
МЕДИЦИНСКИЕ УЧРЕЖДЕНИЯ
ШОПИНГ
ЗАВЕДЕНИЯ
СПОРТ И СВОБОДНОЕ ВРЕМЯ
АВТОМОБИЛЬНЫЕ УСЛУГИ
ОТПРАВЬТЕ ЗАПРОС
€ 84 000
- €
- руб.
- $
Платежи с карты и PayPal.
Располагаем онлайн ПОС терминалом
Располагаем онлайн ПОС терминалом
Комплекс сдан!
Дата сдачи: 15.08.2013 г
Агенству причитается комиссия
*/ ?>
ПОДРОБНАЯ ИНФОРМАЦИЯ
Реф. номер: Vna 70822
При звонке, пожалуйста, указывайте номер объекта недвижимости.


Объектов недвижимости в этом комплексе
93
объектов недвижимости
34
свободных
59
проданных
0
забронированных