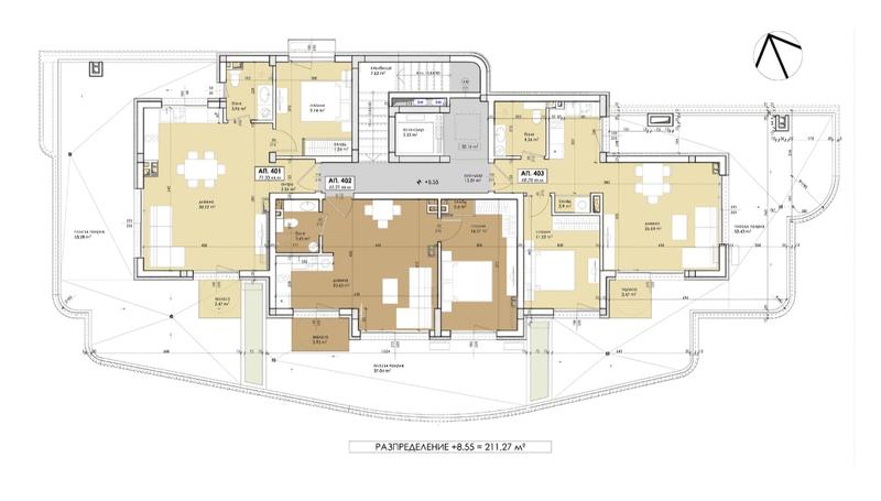
квартира 205 , общая площадь 106.76 кв.м. (жилая площадь 90.60 кв.м. + общие части 16.16 кв.м.).
Началось строительство нового, чрезвычайно привлекательного четырехэтажного здания с первоклассным расположением в самом сердце нового района Созополя - Мисарья, на 2 асфальтированных улицах, за стадионом и в нескольких метрах от пляжа Хармани и моря.
Здание состоит в общей сложности из 18 квартир - 16 двухкомнатных и 2 трехкомнатных, расположенных на 4 этажах с роскошным лифтом (доходящим также до подземного гаража). Предусмотренные парковочные места расположены в здании на подземном уровне - 13 единиц и на наземном уровне - 5 единиц. Въезд в подземный гараж спроектирован с пандусом через внутренний двор и улицу с востока.
Объект характеризуется высоким стандартом строительства, подтвержденным несколькими успешно завершенными проектами инвестора. Квартиры предлагаются в БДС, сочетая бескомпромиссное качество и точное исполнение, что позволяет покупателям гибко проектировать жилые помещения в соответствии с их личными вкусами и предпочтениями. Каждая деталь подобрана таким образом, чтобы обеспечить бесперебойную и длительную эксплуатацию, энергоэффективность и комфорт в вашем будущем доме.
В конструкции использованы материалы высокого класса:
• Стены из полнотелого кирпича Wienerberger Thermo 25 см.
• Теплоизоляционные системы Baumit и XPS 10 см
• Эффективные оконные рамы из ПВХ SALAMANDER Streamline 76 с высококлассным остеклением "четыре сезона"
• Противовзломные входные двери
• Известково-цементная штукатурка, цементная штукатурка и высококачественные материалы в помещениях
• Керамогранит и газопламенная гидроизоляция на балконах
• Полностью выполненная электрическая и сантехническая разводка, установлены выключатели, розетки и освещение на балконах
• Завершена установка систем отопления, вентиляции и кондиционирования, интернета и телевидения
• Гидравлические лифты и стильная отделка общих зон
• Парковочные места и гаражи - полированный бетон и исполнение проекта, обеспечивающее надежность и удобство
Схема оплаты
• Депозит за бронирование в размере 2000 евро
• 30% (за вычетом депозита) - при подписании предварительного договора
• 40% - при получении Акта 14
• 20% при получении Акта 15
• 10% при получении Акта 16 и нотариальной передаче квартиры.
Существует возможность индивидуального плана оплаты, с отличными условиями кредитования от ведущих банков в зависимости от ваших потребностей.
Этот жилой комплекс представляет собой отличную возможность для тех, кто ищет новый дом в престижном месте г. Созополь, недалеко от пляжа и основных услуг.
Посмотреть недвижимость
Мы можем организовать просмотр недвижимости в соответствии с нашим графиком и доступностью. Запросите просмотр, связавшись с брокером, ответственным за предложение, по электронной почте или по телефону.
Резервирование недвижимости
Объект может быть зарезервирован и снят с продажи при внесении задатка, после чего прекращаются просмотры с другими покупателями и начинается подготовка документов для заключения предварительного и окончательного контракта. Свяжитесь с ответственным брокером для получения подробной информации о процедуре покупки и порядке оплаты.
- Описание
- Характеристики
- Галерея
- Местоположение
- Прайс-лист
Характеристики
Тип недвижимости
Трехкомнатная квартира
Реф. номер
BS 88740
Площадь
106.76 м2 (жилая площадь: 90.6 м2 плюс общие части: 16.16 м2) еще
Спальни
2
Состояние
болгарский государственный стандарт
Этаж
2 из 4
Лифт
да
Меблировка
Немеблированная
Отопление
Отопление кондиционером
Вид строительства
Кирпич, Новостройки
Окна выходят на:
Восток, Запад, На север, Юг
Год строительства
2028
Плата за обслуживание
нет
Новостройка в районе Мисаря города Созополь дополнительная информация:
Планы
Планы
Прайс-лист
Меблировка
Фото с воздуха
Генплан
360° градусов
Инфо пакет
Референтный номер: BS 88740
Местоположение
г. Созополь- 600 м до пляжа
Удобства района
- Почта "Еконт" 402 м (5 мин.)
- Почта "InTime" 408 м (5 мин.)
- Салон красоты 423 м (6 мин.)
- Ресторан "Bistro byalata kashta" 439 м (6 мин.)
- Ресторан "Onegin" 498 м (6 мин.)
- Бар 573 м (7 мин.)
- Пляж 600 м (8 мин.)
- Детская площадка "Jenny P" 418 м (6 мин.)
ТРАНСПОРТ
УСЛУГИ
ЗАВЕДЕНИЯ
СПОРТ И СВОБОДНОЕ ВРЕМЯ
ОТПРАВЬТЕ ЗАПРОС
€ 171 000
- €
- руб.
- $
Платежи с карты и PayPal.
Располагаем онлайн ПОС терминалом
Располагаем онлайн ПОС терминалом
Комплекс строится
Ввод в эксплуатацию: 02.11.2028 г
Агенству причитается комиссия
Прайс-лист
*/ ?>
ПОДРОБНАЯ ИНФОРМАЦИЯ
Реф. номер: BS 88740
При звонке, пожалуйста, указывайте номер объекта недвижимости.
Объектов недвижимости в этом комплексе
13
объектов недвижимости
12
свободных
1
проданных
0
забронированных
ОТПРАВЬТЕ ЗАПРОС
Еще объекты недвижимости в в этом комплексе
Продажа
Двухкомнатная квартира в Новостройка в районе Мисаря города Созополь
г. Созополь
Четырехэтажный жилой дом в нескольких метрах от пляжа Хармани и моря
Продажа
Двухкомнатная квартира в Новостройка в районе Мисаря города Созополь
г. Созополь
Четырехэтажный жилой дом в нескольких метрах от пляжа Хармани и моря
Продажа
Двухкомнатная квартира в Новостройка в районе Мисаря города Созополь
г. Созополь
Четырехэтажный жилой дом в нескольких метрах от пляжа Хармани и моря
Продажа
Трехкомнатная квартира в Новостройка в районе Мисаря города Созополь
г. Созополь
Четырехэтажный жилой дом в нескольких метрах от пляжа Хармани и моря
Продажа
Двухкомнатная квартира в Новостройка в районе Мисаря города Созополь
г. Созополь
Четырехэтажный жилой дом в нескольких метрах от пляжа Хармани и моря
Продажа
Двухкомнатная квартира в Новостройка в районе Мисаря города Созополь
г. Созополь
Четырехэтажный жилой дом в нескольких метрах от пляжа Хармани и моря
Продажа
Двухкомнатная квартира в Новостройка в районе Мисаря города Созополь
г. Созополь
Четырехэтажный жилой дом в нескольких метрах от пляжа Хармани и моря
Продажа
Двухкомнатная квартира в Новостройка в районе Мисаря города Созополь
г. Созополь
Четырехэтажный жилой дом в нескольких метрах от пляжа Хармани и моря
Продажа
Трехкомнатная квартира в Новостройка в районе Мисаря города Созополь
г. Созополь
Четырехэтажный жилой дом в нескольких метрах от пляжа Хармани и моря
Продажа
Двухкомнатная квартира в Новостройка в районе Мисаря города Созополь
г. Созополь
Четырехэтажный жилой дом в нескольких метрах от пляжа Хармани и моря
Продажа
Двухкомнатная квартира в Новостройка в районе Мисаря города Созополь
г. Созополь
Четырехэтажный жилой дом в нескольких метрах от пляжа Хармани и моря
Продажа
Двухкомнатная квартира в Новостройка в районе Мисаря города Созополь
г. Созополь
Четырехэтажный жилой дом в нескольких метрах от пляжа Хармани и моря
Еще объекты недвижимости в г. Созополь
Продажа
лучшее предложение
Serena Residence - оазис спокойствия в нескольких метрах от пляжа
г. Созополь , Пляж Каваци
Меблированные и оборудованные студии и апартаменты с одной спальней рядом с пляжами Каваци и Смокиня
Serena Residence - оазис спокойствия в нескольких метрах от пляжа - Меблированные и оборудованные студии и апартаменты с одной спальней рядом с пляжами Каваци и Смокиня
Продажа
Лили Бийч Ризорт / Lily Beach Resort
г. Созополь
Апартаменты в элитном комплексе в 150 м от пляжа Каваци в Созополе
Лили Бийч Ризорт / Lily Beach Resort - Апартаменты в элитном комплексе в 150 м от пляжа Каваци в Созополе
от € 86 000
(€/кв.м. 1 202 - €/кв.м. 1 696)Площадь: 55.96 - 118.18 кв.м.
Павел Раванов
Риэлтор, Бургас
Продажа
новинка
Апартаменты с видом на море в новом здании в Созополь
г. Созополь
Завершенные апартаменты под ключ рядом с пляжем Хармани
Апартаменты с видом на море в новом здании в Созополь - Завершенные апартаменты под ключ рядом с пляжем Хармани
от € 57 600
(€/кв.м. 1 151 - €/кв.м. 1 300)Площадь: 47.98 - 58.97 кв.м.
Павел Раванов
Риэлтор, Бургас
Продажа
новинка
Меблированная двухкомнатная квартира в люксовом комплексе – Буджака, Созополь
г. Созополь
Квартира на первом этаже с верандой, видом на бассейн и частичным видом на море
Меблированная двухкомнатная квартира в люксовом комплексе – Буджака, Созополь - Квартира на первом этаже с верандой, видом на бассейн и частичным видом на море
Продажа
Трехкомнатная квартира в районе Буджака Созополь
г. Созополь
Меблированная квартира на нулевом этаже
Трехкомнатная квартира в районе Буджака Созополь - Меблированная квартира на нулевом этаже
Продажа
Люкс
ВТОРАЯ ЛИНИЯ
Меблированная трёхкомнатная квартира с частичным видом на море
г. Созополь
Идеальный объект для отдыха или инвестиций, всего в нескольких шагах от пляжа
Меблированная трёхкомнатная квартира с частичным видом на море - Идеальный объект для отдыха или инвестиций, всего в нескольких шагах от пляжа
Продажа
Новое здание в красивом городе Созополь
г. Созополь
Последняя двухкомнатная квартира и студия в 100 метрах от пляжа Харманите
Новое здание в красивом городе Созополь - Последняя двухкомнатная квартира и студия в 100 метрах от пляжа Харманите
от € 72 000
(€/кв.м. 1 530 - €/кв.м. 1 678)Площадь: 47.06 - 61.40 кв.м.
Павел Раванов
Риэлтор, Бургас
Продажа
Меблированный офис в центральной части города Созополь
г. Созополь
Недвижимость в новом здании перед Актом 16 в 700 м от пляжа Харманите
Меблированный офис в центральной части города Созополь - Недвижимость в новом здании перед Актом 16 в 700 м от пляжа Харманите
Продажа
Двухкомнатная квартира с фронтальным видом на море в Созополе
г. Созополь
Меблированная квартира над пристанью для яхт
Двухкомнатная квартира с фронтальным видом на море в Созополе - Меблированная квартира над пристанью для яхт
Продажа
Двухкомнатная квартира с частичным видом на море в Новом городе - Созополь
г. Созополь
Меблированная квартира с тремя балконами недалеко от центра
Двухкомнатная квартира с частичным видом на море в Новом городе - Созополь - Меблированная квартира с тремя балконами недалеко от центра
Продажа
Люкс
гарантированная аренда
Современная меблированная двухкомнатная квартира в Созополе
г. Созополь
Апартаменты для отдыха в престижном комплексе в 200 м от пляжа Смокиня
Современная меблированная двухкомнатная квартира в Созополе - Апартаменты для отдыха в престижном комплексе в 200 м от пляжа Смокиня
Продажа
Люкс
Полностью меблированная двухкомнатная квартира рядом с пляжем Смокиня, Созополь
г. Созополь
Современная квартира в элегантном комплексе с бассейном, фитнесом и парковкой, в нескольких минутах от моря
Полностью меблированная двухкомнатная квартира рядом с пляжем Смокиня, Созополь - Современная квартира в элегантном комплексе с бассейном, фитнесом и парковкой, в нескольких минутах от моря
Продажа
Двухкомнатная квартира в г. Созополь
г. Созополь , Плаж Каваци
Продажа двухкомнатных квартир, Созополь
Двухкомнатная квартира в г. Созополь - Продажа двухкомнатных квартир, Созополь
Продажа
Лицензированный игровой зал в центре Созополя
г. Созополь
Отличная инвестиция в 100 метрах от пляжа Хармани
Лицензированный игровой зал в центре Созополя - Отличная инвестиция в 100 метрах от пляжа Хармани
Продажа
ПЕРВАЯ ЛИНИЯ
Двухкомнатная квартира с верандой и фронтальным видом на море в Созополь
г. Созополь
Двухкомнатная квартира с прекрасным видом в нескольких метрах от Райской бухты
Двухкомнатная квартира с верандой и фронтальным видом на море в Созополь - Двухкомнатная квартира с прекрасным видом в нескольких метрах от Райской бухты
Продажа
Пятиэтажный семейный отель с 13 номерами и студио с панорамной террасой в Созополь
г. Созополь
Отель в 500 метрах от пляжа Хармани и «Веселая уличка» в Созополь
Пятиэтажный семейный отель с 13 номерами и студио с панорамной террасой в Созополь - Отель в 500 метрах от пляжа Хармани и «Веселая уличка» в Созополь
Продажа
Люкс
ПЕРВАЯ ЛИНИЯ
Просторная студия с прекрасным видом на море в Созополе
г. Созополь
Меблированная квартира на первой линии моря в районе Буджака
Просторная студия с прекрасным видом на море в Созополе - Меблированная квартира на первой линии моря в районе Буджака
от € 120 000от € 69 594
(€/кв.м. 1 458 - €/кв.м. 2 024)Площадь: 75.10 - 82.30 кв.м.
Павел Раванов
Риэлтор, Бургас
Продажа
ПЕРВАЯ ЛИНИЯ
Меблированная двухкомнатная квартира в Санта Марина Созополь
г. Созополь
Комфортабельная квартира для отдыха на первой линии от моря, среди соснового леса
Меблированная двухкомнатная квартира в Санта Марина Созополь - Комфортабельная квартира для отдыха на первой линии от моря, среди соснового леса
Продажа
-3%
Люкс
Стильно меблированная квартира с видом на море
г. Созополь
Курортная квартира рядом с яхтенной пристанью в Созополе
Стильно меблированная квартира с видом на море - Курортная квартира рядом с яхтенной пристанью в Созополе
Продажа
Меблированная двухкомнатная квартира с видом на море в Созополе
г. Созополь
Просторный апартамент в престижном комплексе с отличными удобствами
Меблированная двухкомнатная квартира с видом на море в Созополе - Просторный апартамент в престижном комплексе с отличными удобствами
Продажа
ПЕРВАЯ ЛИНИЯ
Двухкомнатная квартира в комплексе Green Life Resort/Грин Лайф Резорт
г. Созополь
Новая меблированная квартира для отдыха в Созополе
Двухкомнатная квартира в комплексе Green Life Resort/Грин Лайф Резорт - Новая меблированная квартира для отдыха в Созополе
Продажа
ВТОРАЯ ЛИНИЯ
Двухкомнатная квартира с гаражом в Созополе
г. Созополь
Полностью меблированное жильё всего в 400 м от моря и яхт пристани
Двухкомнатная квартира с гаражом в Созополе - Полностью меблированное жильё всего в 400 м от моря и яхт пристани
Подписывайтесь на наш канал